Sehr gut sichtbares Gebäude
1210 Wien, Floridsdorf






221,28 m²€ 2.500,46
Objektinformation
Kosten
Summe Miete (netto)€ 2.500,46
Miete / m²€ 11,30
Betriebskosten (netto)€ 407,16
Provision
3 Bruttomonatsmieten zzgl. 20% USt.
Vertragsart
, Miete , unbefristet
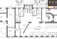
Nutzfläche
221,28 m2
Beschreibung
Objekt und Lage:
Die Liegenschaft liegt in der Prager Straße. Gleich nebenan befindet sich eine Tankstelle mit einer Autowaschanlage, hinter dem Gebäude ist großer Supermarkt (Billa Plus) samt großem Parkplatz.
Büroflächen:
Die Bürofläche im 2. Obergeschoss befindet sich derzeit im Rohbau. Hier kann man seine eigenen Vorstellungen gut verwirklichen. Die Dauer der Fertigstellung muss mit dem Vermieter individuell besprochen werden.
Alle Preisangaben verstehen sich zzgl. der gesetzl. Ust.
Alle Angaben ohne Gewähr, Irrtümer..
Die Liegenschaft liegt in der Prager Straße. Gleich nebenan befindet sich eine Tankstelle mit einer Autowaschanlage, hinter dem Gebäude ist großer Supermarkt (Billa Plus) samt großem Parkplatz.
Büroflächen:
Die Bürofläche im 2. Obergeschoss befindet sich derzeit im Rohbau. Hier kann man seine eigenen Vorstellungen gut verwirklichen. Die Dauer der Fertigstellung muss mit dem Vermieter individuell besprochen werden.
Alle Preisangaben verstehen sich zzgl. der gesetzl. Ust.
Alle Angaben ohne Gewähr, Irrtümer..
Mehr
Weitere Preisinformationen
- Heizkosten (netto)€ 177,02
- Nebenkosten / m²€ 1,84
Auswahl ändern
Anbieter

Anbieter
Anita Kronaus-Buchegger
DECUS Immobilien GmbHTelefon
+43 664 16 ...

Anbieter kontaktieren
