DPC | Geschäftsfläche nahe Schottentor
1090 Wien, Alsergrund










319,75 m²€ 6.290,41
Objektinformation
Kosten
Gesamtbelastung (brutto)€ 6.290,41
Gesamtbelastung (netto)€ 5.641,69
Kaltmiete (netto)€ 4.796,25
Kaltmiete€ 5.275,88
Nebenkosten€ 845,44
Vertragsart
, Miete , befristet
Nutzfläche
319,75 m2
Energie
HWB62 kWh/m²
HWB-KlasseC
Verfügbar
ab sofort
Beschreibung
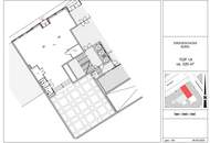
Zur Vermietung gelangt eine sehr gut gelegene Geschäftsfläche mit ca. 320 m² im EG eines Hauses in unmittelbarer Nähe zum Schottentor.
Raumaufteilung:
- großer Lokalraum
- kleines Büro/Besprechungsraum
- Serverraum
- Abstellraum
- getrennte Sanitäranlagen
Raumaufteilung:
- großer Lokalraum
- kleines Büro/Besprechungsraum
- Serverraum
- Abstellraum
- getrennte Sanitäranlagen
Weitere Preisinformationen
- Hauptmietzins (netto)€ 4.796,25
Lage
Verkehrsanbindung/Infrastruktur:
U-Bahn: U2 Schottenring
Straßenbahn: 1, 2, 37, 38, 40, 41, 42, 43, 44 und D
Bus: 40A
Der Standort verfügt über eine exzellente öffentliche Verkehrsanbindung und Infrastruktur. In unmittelbarer Nähe der U-Bahn-Station Schottentor und in der Nähe der Börse gelegen, befinden sich zahlreiche Restaurants, Bars und Cafés sowie Einkaufsmöglichkeiten in unmittelbarer Umgebung.
U-Bahn: U2 Schottenring
Straßenbahn: 1, 2, 37, 38, 40, 41, 42, 43, 44 und D
Bus: 40A
Der Standort verfügt über eine exzellente öffentliche Verkehrsanbindung und Infrastruktur. In unmittelbarer Nähe der U-Bahn-Station Schottentor und in der Nähe der Börse gelegen, befinden sich zahlreiche Restaurants, Bars und Cafés sowie Einkaufsmöglichkeiten in unmittelbarer Umgebung.
Zusatzinformationen
Kaution 6 BMM
Provision 3 BMM
Auswahl ändern
Anbieter

Anbieter
Milica Ljubojevic
DPC Danube Property Consulting Immobilien GmbHTelefon
00436764...

Anbieter kontaktieren