DPC | Topmoderne Büroflächen
1200 Wien, Brigittenau









659 m²€ 15.498,99
Objektinformation
Kosten
Gesamtbelastung (brutto)€ 15.498,99
Gesamtbelastung (netto)€ 12.915,82
Kaltmiete (netto)€ 10.214,04
Kaltmiete€ 12.256,85
Nebenkosten€ 2.701,78
Vertragsart
, Miete , befristet
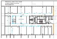
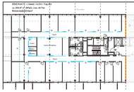
Nutzfläche
659 m2
Energie
HWB45,62 kWh/m²
HWB-KlasseB
fGEE1,2
fGEE-KlasseC
Verfügbar
ab sofort
Beschreibung
Diese Bürofläche bietet mit viel Glasfront einen ungehinderten Blick ins Freie auf beiden Seiten.
Die Landmarke an der Donau erinnert an zwei gegenüberliegende Segel: Gate 1 mit zwölf Obergeschoßen und Gate 2 mit acht Obergeschoßen schaffen eine architektonische Nähe zum Fluss.
Im RIVERGATE genießen Sie modernste Architektur hautnah. In den obersten Stockwerken des Bauteils Gate 2 gelegen, eröffnet die gebogene Glasfassade einen spektakulären Ausblick über die Donau bis zum Kahlenberg. Der flexibel gestaltbare Innenraum mit hohem Glasflächenateil ermöglicht effiziente Kombinat..
Die Landmarke an der Donau erinnert an zwei gegenüberliegende Segel: Gate 1 mit zwölf Obergeschoßen und Gate 2 mit acht Obergeschoßen schaffen eine architektonische Nähe zum Fluss.
Im RIVERGATE genießen Sie modernste Architektur hautnah. In den obersten Stockwerken des Bauteils Gate 2 gelegen, eröffnet die gebogene Glasfassade einen spektakulären Ausblick über die Donau bis zum Kahlenberg. Der flexibel gestaltbare Innenraum mit hohem Glasflächenateil ermöglicht effiziente Kombinat..
Mehr
Weitere Preisinformationen
- Hauptmietzins (netto)€ 10.214,04
Lage
U-Bahn: U6
S-Bahn: S1, S2, S3, S4, S5, S6, S7, S8, S9, S15, S45, Regionalbahn
Bus: 5A, 11A
S-Bahn: S1, S2, S3, S4, S5, S6, S7, S8, S9, S15, S45, Regionalbahn
Bus: 5A, 11A
Ausstattung
- öffenbare Fenster
- Sonnen- und Blendschutz innen- oder außenliegend
- Doppelboden inkl. Bodentanks
- hochwertige Teppichfliesen
- Leichtbauwände
- ergonomisches Beleuchtungskonzept
- Teeküchen (Anschlüsse vorbereitet)
- LAN-Raum (Anschlüsse vorbereitet)
- Repräsentatives Entree „Atrium“
- Alarm- und Überwachungssysteme
- modernste Zutritts- und Sicherheitssysteme
- 24 Std. technischer Bereitschaftsdienst
- Mechanische Be- und Entlüftung
- Energiesparende Bauteilkühlung und Heizung
- Sonnen- und Blendschutz innen- oder außenliegend
- Doppelboden inkl. Bodentanks
- hochwertige Teppichfliesen
- Leichtbauwände
- ergonomisches Beleuchtungskonzept
- Teeküchen (Anschlüsse vorbereitet)
- LAN-Raum (Anschlüsse vorbereitet)
- Repräsentatives Entree „Atrium“
- Alarm- und Überwachungssysteme
- modernste Zutritts- und Sicherheitssysteme
- 24 Std. technischer Bereitschaftsdienst
- Mechanische Be- und Entlüftung
- Energiesparende Bauteilkühlung und Heizung
Zusatzinformationen
Kaution 3-6 BMM (abhängig von Bonität)
Provision 3 BMM
Auswahl ändern
Anbieter

Anbieter
Milica Ljubojevic
DPC Danube Property Consulting Immobilien GmbHTelefon
00436764...

Anbieter kontaktieren