Erstbezug nach Sanierung: Großes, helles Ecklokal im 6.Bezirk
1060 Wien, Mariahilf









133,87 m²€ 2.605,27
Objektinformation
Kosten
Gesamtbelastung (netto)€ 2.605,27
Summe Miete (netto)€ 2.194,13
Miete / m²€ 16,39
Betriebskosten (netto)€ 409,64
Provision
3 Bruttomonatsmieten zzgl. 20% USt.
Kautionshinweis
3-6 Bruttomonatsmieten
Vertragsart
, Miete , befristet
Nutzfläche
133,87 m2
Energie
HWB224,1 kWh/m²
HWB-KlasseF
fGEE2,9
fGEE-KlasseE
Energieausweis bis2032-11-24
Verfügbar
ab sofort
Beschreibung
Highlights
* Sehr gute Sichtbarkeit
* Effiziente Aufteilung
* Bodentiefe Fenster
* Ausgezeichnete Lage
Das Objekt
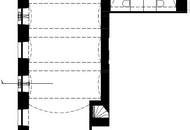
In der Königsegggasse im 6. Wiener Gemeindebezirk gelangt dieses schöne, frisch sanierte Ecklokal ab sofort zur Vermietung. Die ca. 134 m² große Fläche befindet sich im Erdgeschoss und ist barrierefrei zugänglich. Das Objekt verfügt über einen großen Verkaufsraum, einen Aufenthalts-/Lagerraum inkl. Anschlüsse für eine Teeküche, sowie ein Badezimmer, das mit einer Dusche, einem Waschbecken und einem WC ausgestattet ist.
D..
* Sehr gute Sichtbarkeit
* Effiziente Aufteilung
* Bodentiefe Fenster
* Ausgezeichnete Lage
Das Objekt
In der Königsegggasse im 6. Wiener Gemeindebezirk gelangt dieses schöne, frisch sanierte Ecklokal ab sofort zur Vermietung. Die ca. 134 m² große Fläche befindet sich im Erdgeschoss und ist barrierefrei zugänglich. Das Objekt verfügt über einen großen Verkaufsraum, einen Aufenthalts-/Lagerraum inkl. Anschlüsse für eine Teeküche, sowie ein Badezimmer, das mit einer Dusche, einem Waschbecken und einem WC ausgestattet ist.
D..
Mehr
Weitere Preisinformationen
- Sonstige Kosten€ 1,50
Lage
Otto-Bauer-Gasse, Mariahilfer Straße
Auswahl ändern
Anbieter

Anbieter
Cornelia Pflug
EDEX Immobilien GmbHTelefon
+436763...

Anbieter kontaktieren
