Schönes 2-Zimmer-Büro im Cottageviertel
1180 Wien, Hernals












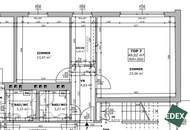
49,02 m²2 Räume€ 581,47
Objektinformation
Kosten
Gesamtbelastung (netto)€ 581,47
Summe Miete (netto)€ 405,00
Betriebskosten (netto)€ 176,47
Provision
1 Bruttomonatsmiete zzgl. 20% USt.
Kautionshinweis
€ 2.500,00
Vertragsart
, Miete , unbefristet
Nutzfläche
49,02 m2 (2 Zimmer)
Energie
HWB172,9 kWh/m²
HWB-KlasseE
fGEE2,77
fGEE-KlasseE
Energieausweis bis2033-10-22
Verfügbar
ab sofort
Beschreibung
Highlights
* Tolle Lage im Cottageviertel
* Sehr gute Anbindung und Infrastruktur
* Gute Raumaufteilung
* Tee-Küche
Objektbeschreibung
Dieses schöne 2-Zimmer-Büro liegt im 1. Stock (ohne Lift) eines gepflegten Neubaus und befindet sich inmitten des Cottageviertels im 18. Wiener Gemeindebezirk. Das Büro verfügt über einen Vorraum, eine separate Küche inkl. aller Geräte (Kühlschrank, Backrohr, Geschirrspüler) und über ein Fenster, zwei getrennte Büroräume, sowie ein Badezimmer mit Dusche, WC, Handwaschbecken und Waschma..
* Tolle Lage im Cottageviertel
* Sehr gute Anbindung und Infrastruktur
* Gute Raumaufteilung
* Tee-Küche
Objektbeschreibung
Dieses schöne 2-Zimmer-Büro liegt im 1. Stock (ohne Lift) eines gepflegten Neubaus und befindet sich inmitten des Cottageviertels im 18. Wiener Gemeindebezirk. Das Büro verfügt über einen Vorraum, eine separate Küche inkl. aller Geräte (Kühlschrank, Backrohr, Geschirrspüler) und über ein Fenster, zwei getrennte Büroräume, sowie ein Badezimmer mit Dusche, WC, Handwaschbecken und Waschma..
Mehr
Lage
Anastasius-Grün-Gasse
Auswahl ändern
Anbieter

Anbieter
David Schober, MSc
EDEX Immobilien GmbHTelefon
+436763...

Anbieter kontaktieren