4 Lager- und Büroflächen (bis 30.06.2028 befristet vermietet) - Anlegerobjekt
1160 Wien, Ottakring






430,71 m²€ 490.000
Objektinformation
Kosten
Kaufpreis€ 490.000
Kaufpreis / m²€ 1.137,66
Provision
3% des Kaufpreises zzgl. 20% USt.
Vertragsart
, Kauf
Nutzfläche
430,71 m2
Energie
HWB94,8 kWh/m²
HWB-KlasseD
fGEE2,04
fGEE-KlasseC
Energieausweis bis2032-10-20
Beschreibung
Bei der gegenständlichen Liegenschaft handelt es sich um ein Paket aus Lager- und Büroflächen, welche bis längstens 30.06.2028 befristet vermietet sind.
Zu verkaufende Gesamtfläche: ca. 430,71 m².
Nettomietertrag p.a.: EUR 17.634.-
Transaktionsart: Asset Deal
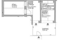
Einheiten:
* EG/ST - Top 1 - ca. 253,38 m² - EG 10,50 m² & ST 242,88 m² - Mietende 30.09.2027
* EG - Top 2 - ca. 45,61 m² zzgl. ca. 15,67 m² Freifläche – Mietende 30.09.2027
* EG - Top 4 - ca. 63,23 m² – Mietende 30.09.2027
* EG - Top..
Zu verkaufende Gesamtfläche: ca. 430,71 m².
Nettomietertrag p.a.: EUR 17.634.-
Transaktionsart: Asset Deal
Einheiten:
* EG/ST - Top 1 - ca. 253,38 m² - EG 10,50 m² & ST 242,88 m² - Mietende 30.09.2027
* EG - Top 2 - ca. 45,61 m² zzgl. ca. 15,67 m² Freifläche – Mietende 30.09.2027
* EG - Top 4 - ca. 63,23 m² – Mietende 30.09.2027
* EG - Top..
Mehr
Lage
Hasnerstraße, Thaliastraße, Gürtel
Auswahl ändern
Anbieter

Anbieter
Franz Kronberger
EDEX Immobilien GmbHTelefon
+436769...

Anbieter kontaktieren