Ruhelage: Schöne 2-Zimmer-Wohnung mit Loggia in Augartennähe
1020 Wien, Leopoldstadt






















2 Zimmer€ 1.549,00
Objektinformation
Kosten
Gesamtbelastung (brutto)€ 1.549,00
Gesamtbelastung (netto)€ 1.408,18
Summe Miete (netto)€ 1.274,69
Betriebskosten (netto)€ 133,49
Provision
Gemäß Erstauftraggeberprinzip bezahlt der Abgeber die Provision.
Kautionshinweis
3 Bruttomonatsmieten
Vertragsart
, Miete , befristet
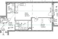
Wohnfläche
keine Angabe
Freifläche
, Loggia
Objektart
Etagenwohnung
Bauart
Neubau: 2019
Energie
HWB15,6 kWh/m²
HWB-KlasseA
fGEE0,72
fGEE-KlasseA
Energieausweis bis2035-11-18
Verfügbar
ab sofort
Beschreibung
HIGHLIGHTS DER WOHNUNG
*
Großzügiges Wohnzimmer
*
Südost-Balkon
*
Außenjalousien
*
Fußbodenheizung mit Fernwärme
*
Hochwertige Küche & modernes Bad
*
Kellerabteil & Fahrradraum
-------------------------
DIE WOHNUNG
Diese stilvolle und lichtdurchflutete 2-Zimmer-Wohnung befindet sich in einem modernen Neubau in der Pazmanitengasse, mitten im beliebten 2. Wiener Gemeindebezirk. Die Wohnung liegt im 1. Stock (mit Lift) und bietet auf rund 65 m² Wohnfläche höchsten Wohnkomfort und ein in..
*
Großzügiges Wohnzimmer
*
Südost-Balkon
*
Außenjalousien
*
Fußbodenheizung mit Fernwärme
*
Hochwertige Küche & modernes Bad
*
Kellerabteil & Fahrradraum
-------------------------
DIE WOHNUNG
Diese stilvolle und lichtdurchflutete 2-Zimmer-Wohnung befindet sich in einem modernen Neubau in der Pazmanitengasse, mitten im beliebten 2. Wiener Gemeindebezirk. Die Wohnung liegt im 1. Stock (mit Lift) und bietet auf rund 65 m² Wohnfläche höchsten Wohnkomfort und ein in..
Mehr
Auswahl ändern
Anbieter

Anbieter
David Schober, MSc
EDEX Immobilien GmbHTelefon
+436763...

Anbieter kontaktieren