Charmanter Altbau mit Lift und Gemeinschaftsterrasse
1170 Wien, Hernals


















Objektinformation
Kosten
Kaufpreis€ 325.000
Betriebskosten (netto)€ 250,45
Provision
3% des Kaufpreises zzgl. 20% USt.
Vertragsart
, Kauf
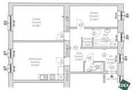
Wohnfläche
69,57 m2 (3 Zimmer)
Bauart
Altbau
Energie
HWB77 kWh/m²
HWB-KlasseC
fGEE1,39
fGEE-KlasseC
Energieausweis bis2029-03-03
Beschreibung
Highlights
*
Gepflegter Altbau in urbaner Lage des 17. Bezirks
*
Hervorragende öffentliche Verkehrsanbindung
*
Begrünte Gemeinschaftsterrasse & Gemeinschaftsraum
*
hofseitiges Schlafzimmer
Objektbeschreibung
Zum Verkauf gelangt eine helle und gut geschnittene 3-Zimmer-Wohnung mit ca. 68 m² Wohnfläche im 3. Liftstock eines gepflegten Altbaus auf der Hernalser Hauptstraße.
Die Wohnung besticht durch ihren charmanten Altbau-Charakter, hohe Räume und eine durchdachte Raumaufteilung, die sowohl für Singles, Paare als auch klei..
*
Gepflegter Altbau in urbaner Lage des 17. Bezirks
*
Hervorragende öffentliche Verkehrsanbindung
*
Begrünte Gemeinschaftsterrasse & Gemeinschaftsraum
*
hofseitiges Schlafzimmer
Objektbeschreibung
Zum Verkauf gelangt eine helle und gut geschnittene 3-Zimmer-Wohnung mit ca. 68 m² Wohnfläche im 3. Liftstock eines gepflegten Altbaus auf der Hernalser Hauptstraße.
Die Wohnung besticht durch ihren charmanten Altbau-Charakter, hohe Räume und eine durchdachte Raumaufteilung, die sowohl für Singles, Paare als auch klei..
Mehr
Weitere Preisinformationen
- Sonstige Kosten€ 73,05
Lage
Hernalser Hauptstraße
Auswahl ändern
Anbieter

Anbieter
Yasmin Szaraniec
EDEX Immobilien GmbHTelefon
+436764...

Anbieter kontaktieren