Exklusive Innenstadt-Maisonette mit Glasfront, Freiflächen & Stephansdom-Blick
1010 Wien, Innere Stadt, Tuchlauben




















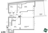
156,48 m²4 Zimmer€ 3.995,00
Objektinformation
Kosten
Gesamtbelastung (brutto)€ 3.995,00
Gesamtbelastung (netto)€ 3.631,81
Summe Miete (netto)€ 3.187,88
Betriebskosten (netto)€ 344,18
Provision
Gemäß Erstauftraggeberprinzip bezahlt der Abgeber die Provision.
Kautionshinweis
3 Bruttomonatsmieten
Vertragsart
, Miete , befristet
Wohnfläche
156,48 m2 (4 Zimmer)
Freifläche
, Loggia (2), Terrasse (2)
Beschreibung
Highlights
* Exklusive Lage in der Wiener Innenstadt
* Einzigartige Architektur mit beeindruckender Glasfront
* Blick auf den Stephansdom
* Klimatisierte Räume
* Außenliegender Sonnenschutz (wird neu installiert) & innenliegender Sonnenschutz
* Sonnensegel auf der Hauptterrasse
* Zwei Terrassen & zwei Loggien – Ausrichtung in den ruhigen Innenhof
Objektbeschreibung
Diese außergewöhnliche Maisonette-Wohnung mit insgesamt rd. 156,48 m² Wohnfläche liegt in einem stilvollen und ruhigen Innenhof der Tuchlauben – einer der prestigeträchtig..
* Exklusive Lage in der Wiener Innenstadt
* Einzigartige Architektur mit beeindruckender Glasfront
* Blick auf den Stephansdom
* Klimatisierte Räume
* Außenliegender Sonnenschutz (wird neu installiert) & innenliegender Sonnenschutz
* Sonnensegel auf der Hauptterrasse
* Zwei Terrassen & zwei Loggien – Ausrichtung in den ruhigen Innenhof
Objektbeschreibung
Diese außergewöhnliche Maisonette-Wohnung mit insgesamt rd. 156,48 m² Wohnfläche liegt in einem stilvollen und ruhigen Innenhof der Tuchlauben – einer der prestigeträchtig..
Mehr
Weitere Preisinformationen
- Sonstige Kosten€ 99,75
Lage
Tuchlauben
Auswahl ändern
Anbieter

Anbieter
Harald Anderlik
EDEX Immobilien GmbHTelefon
+436643...

Anbieter kontaktieren