Großzügiges Büro zwischen Bahnhof und Landesregierung!
3100 St. Pölten


















220,51 m²8 Räume€ 2.207,20
Objektinformation
Kosten
Gesamtbelastung (brutto)€ 2.207,20
Gesamtbelastung (netto)€ 1.839,33
Summe Miete (netto)€ 1.543,57
Miete / m²€ 7,00
Betriebskosten (netto)€ 295,76
Provision
3 BMM
Kautionshinweis
€ 7.800,00
Vertragsart
, Miete , unbefristet
Nutzfläche
220,51 m2 (8 Zimmer)
Freifläche
, Terrasse
Beschreibung
Großzügiges Büro zwischen Bahnhof und Landesregierung!
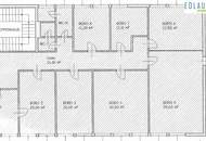
Größe und Raumaufteilung:
Das im 1. Obergeschoß (ohne Lift) gelegene Büro hat ein unverbindliches Ausmaß von ca. 220 m², bestehend aus:
Vorraum, 8 Büroräume, 2 WC mit Waschräumen und Terrasse.
Kfz-Abstellplätze:
Dem Büro sind 4 Kfz-Stellplätze zugeordnet.
Beheizung:
Die Beheizung des Büros erfolgt mittels Gas-Zentralheizung.
Monatliche Kosten:
Die monatliche Miete von EUR 2.207,20 beinhaltet neben dem Hauptmietzins die Betriebskosten und die gesetzliche Umsatz..
Größe und Raumaufteilung:
Das im 1. Obergeschoß (ohne Lift) gelegene Büro hat ein unverbindliches Ausmaß von ca. 220 m², bestehend aus:
Vorraum, 8 Büroräume, 2 WC mit Waschräumen und Terrasse.
Kfz-Abstellplätze:
Dem Büro sind 4 Kfz-Stellplätze zugeordnet.
Beheizung:
Die Beheizung des Büros erfolgt mittels Gas-Zentralheizung.
Monatliche Kosten:
Die monatliche Miete von EUR 2.207,20 beinhaltet neben dem Hauptmietzins die Betriebskosten und die gesetzliche Umsatz..
Mehr
Weitere Preisinformationen
- Provision (netto)€ 5.517,99
- Provision (brutto)€ 6.621,59
- Hauptmietzins (netto)€ 1.543,57
Lage
Autobahnnähe, Bahnhofsnähe, Balkon/Terrasse hofseitig, Grünlage, öffentl. Verkehrsmittel, repräsentativ, Seitenlage, Zentrum-Nähe
Auswahl ändern
Anbieter

Anbieter
Gregor LAMP
Realkanzlei Edlauer Immobilientreuhänder GmbHTelefon
+43/660/507...

Anbieter kontaktieren
