Schöne Altbau Erdgeschoss Wohnung mit Garten im Zentrum von Linz
4020 Linz, Schillerstraße







Objektinformation
Kosten
Kaufpreis€ 237.000
Kaufpreis / m²€ 4.309,09
Betriebskosten (netto)€ 157,39
Provision
3% des Kaufpreises zzgl. 20% USt.
Vertragsart
, Kauf
Wohnfläche
55 m2 (3 Zimmer)
Freifläche
, Garten (42,89m²)
Bauart
Altbau
Energie
HWB62,6 kWh/m²
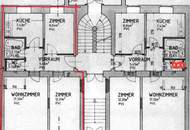
Beschreibung
OBJEKTBESCHREIBUNG:
Zum Verkauf gelangt eine charmante 3-Zimmerwohnung im Erdgeschoss eines schönen Altbaus. Sie bietet eine gemütliche Wohnatmosphäre auf 57 m2. Das pastellrosa Zinshaus hebt sich von den umliegenden Gebäuden in der Schillerstraße deutlich ab. Das prächtige Haus umfasst 10 Wohneinheiten. Die hohen Decken und großen Fenster sorgen für eine angenehme Wohnatmosphäre. Der zur Wohnung dazugehörige Garten im Innenhof, lädt zum Verweilen ein. Ein großes Kellerabteil ist ebenfalls dieser Wohnung zugeordnet.
AUFTEILUNG:
* Vorzimmer 5,45 m2
..
Zum Verkauf gelangt eine charmante 3-Zimmerwohnung im Erdgeschoss eines schönen Altbaus. Sie bietet eine gemütliche Wohnatmosphäre auf 57 m2. Das pastellrosa Zinshaus hebt sich von den umliegenden Gebäuden in der Schillerstraße deutlich ab. Das prächtige Haus umfasst 10 Wohneinheiten. Die hohen Decken und großen Fenster sorgen für eine angenehme Wohnatmosphäre. Der zur Wohnung dazugehörige Garten im Innenhof, lädt zum Verweilen ein. Ein großes Kellerabteil ist ebenfalls dieser Wohnung zugeordnet.
AUFTEILUNG:
* Vorzimmer 5,45 m2
..
Mehr
Lage
Südbahnhofmarkt
Auswahl ändern
Anbieter

Anbieter
Patrick Zauner
FHI Real Estate GmbHTelefon
+43 664 825...

Anbieter kontaktieren