Charmante 3-Zimmer-Wohnung in ruhiger Lage direkt am Schwarzauferweg
2630 Ternitz













81 m²3 Zimmer€ 810,00
Objektinformation
Kosten
Gesamtbelastung (brutto)€ 810,00
Summe Miete (netto)€ 670,00
Betriebskosten (netto)€ 140,00
Provision
Gemäß Erstauftraggeberprinzip bezahlt der Abgeber die Provision.
Kautionshinweis
€ 1,00, 3.000,00 €
Vertragsart
, Miete , befristet
Wohnfläche
81 m2 (3 Zimmer)
Objektart
Erdgeschosswohnung
Energie
HWB175 kWh/m²
HWB-KlasseE
fGEE2,3
fGEE-KlasseD
Energieausweis bis2032-11-29
Beschreibung
Diese helle, geräumige Wohnung befindet sich in einem gepflegten Mehrparteienhaus mit nur drei Wohneinheiten. Die Lage direkt am Schwarzauferweg bietet zahlreiche Freizeitmöglichkeiten wie Radfahren, Walken, Laufen, Inlineskaten oder gemütliche Spaziergänge.
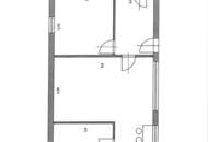
Raumaufteilung:
Zentraler Vorraum, großzügiges Wohnzimmer mit möblierter Küche, zwei weitere Zimmer, Abstellraum, Badezimmer mit Wanne und Fenster, separates WC.
Ausstattung:
Pflegeleichter Laminatboden in den Wohnräumen, verfliestes Bad und WC, helle Räume, großzügiger Gemeinschaftsgarten zur freien Nutzung.
Son..
Raumaufteilung:
Zentraler Vorraum, großzügiges Wohnzimmer mit möblierter Küche, zwei weitere Zimmer, Abstellraum, Badezimmer mit Wanne und Fenster, separates WC.
Ausstattung:
Pflegeleichter Laminatboden in den Wohnräumen, verfliestes Bad und WC, helle Räume, großzügiger Gemeinschaftsgarten zur freien Nutzung.
Son..
Mehr
Lage
Ruhige Wohnlage in Ternitz mit hohem Freizeitwert – ideal zum Radfahren, Laufen oder Spazierengehen. Einkaufsmöglichkeiten, Schulen, Kindergarten, Ärzte und öffentliche Verkehrsmittel sind in wenigen Minuten erreichbar. Sehr gute Anbindung an den Bahnhof Pottschach oder Bahhof Ternitz sowie zur Südautobahn (A2).
Auswahl ändern
Anbieter

Anbieter
Eduard Fischer
Fischer Immobilien GmbHTelefon
0676/84...

Anbieter kontaktieren