Charmantes Einfamilienhaus mit Garten in Mödling – viel Platz & Wohlfühlfaktor
2340 Mödling




























4 Zimmer€ 1.850,00
Objektinformation
Kosten
Gesamtbelastung (brutto)€ 1.850,00
Vertragsart
, Miete , befristet
Wohnfläche
keine Angabe
Grundstück
428 m2
Energie
HWB61 kWh/m²
HWB-KlasseC
Beschreibung
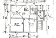
Ein Haus, das Raum zum Leben, Entfalten und Genießen bietet – ideal für alle, die ein gemütliches Zuhause mit Garten in attraktiver Lage suchen.
Dieses liebevoll gestaltete Einfamilienhaus in ruhiger Lage von Mödling überzeugt mit einer durchdachten Raumaufteilung, hellem Wohngefühl und einem schönen Garten zum Entspannen.
Bereits beim Eintreten empfängt Sie ein großzügiger Vorraum, der kürzlich mit einem neuen Boden sowie einem praktischen Schrank ausgestattet wurde – freundlich und einladend.
Von hier aus gelangen Sie über den Gang in ein Zimmer, die Küche, das Wohnzimmer s..
Dieses liebevoll gestaltete Einfamilienhaus in ruhiger Lage von Mödling überzeugt mit einer durchdachten Raumaufteilung, hellem Wohngefühl und einem schönen Garten zum Entspannen.
Bereits beim Eintreten empfängt Sie ein großzügiger Vorraum, der kürzlich mit einem neuen Boden sowie einem praktischen Schrank ausgestattet wurde – freundlich und einladend.
Von hier aus gelangen Sie über den Gang in ein Zimmer, die Küche, das Wohnzimmer s..
Mehr
Weitere Preisinformationen
- Hauptmietzins (netto)€ 1.850,00
Ausstattung
Ausstattung & Details:
•4 Zimmer, Küche, Bad/WC
•Großzügiger Keller mit viel Stauraum
•Separate Waschküche
•Gas-Zentralheizung
•Warmwasser über Strom
•TV-Anschluss in jedem Zimmer möglich
•Eingezäunter Garten in sonniger Südwestlage
•4 Zimmer, Küche, Bad/WC
•Großzügiger Keller mit viel Stauraum
•Separate Waschküche
•Gas-Zentralheizung
•Warmwasser über Strom
•TV-Anschluss in jedem Zimmer möglich
•Eingezäunter Garten in sonniger Südwestlage
Auswahl ändern
Anbieter

Anbieter
Hanna Loreen Kölbl
Friends Immobilien GmbHTelefon
+4369910...

Anbieter kontaktieren