ERSTBEZUG mit Wohnkeller, Garten und je 2 Stellplätzen - mit Kaufoption nach 6 Jahren!!
2523 Tattendorf, Bahnstraße































104,78 m²4 Zimmer€ 1.850,00
Objektinformation
Kosten
Gesamtbelastung (brutto)€ 1.850,00
Gesamtbelastung (netto)€ 1.681,82
Kautionshinweis
€ 25.000,00
Vertragsart
, Miete , unbefristet
Wohnfläche
104,78 m2 (4 Zimmer)
Grundstück
154,39 m2
Freifläche
, Garten (61,91m²), Terrasse
Objektart
Massivhaus
Energie
HWB29,9 kWh/m²
HWB-KlasseB
fGEE0,62
fGEE-KlasseA+
Energieausweis bis2032-09-29
Verfügbar
ab sofort
Beschreibung
ERSTBEZUG mit Garten, Keller & 2 KFZ-Außenabstellplätzen!
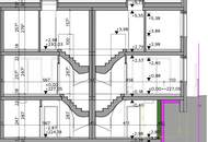
Das Haus teilt sich wie folgt auf:
Erdgeschoss:
* Wohnküche: 43,69 m²
* Vorraum: 4,71 m²
* Badezimmer/WC: 4,43 m²
..
Das Haus teilt sich wie folgt auf:
Erdgeschoss:
* Wohnküche: 43,69 m²
* Vorraum: 4,71 m²
* Badezimmer/WC: 4,43 m²
..
Mehr
Weitere Preisinformationen
- Hauptmietzins (netto)€ 1.681,82
Zusatzinformationen
Wir weisen darauf hin, dass zwischen dem Vermittler und dem Auftraggeber ein familiäres oder wirtschaftliches Naheverhältnis besteht.
Auswahl ändern
Anbieter

Anbieter
Laura Reiter
Friends Immobilien GmbHTelefon
00436643...

Anbieter kontaktieren