Anleger aufgepasst: gepflegtes Zweifamilienhaus auf großem Grundstück
2000 Stockerau


























Objektinformation
Kosten
Kaufpreis€ 850.000
Provision
30.600,00 € inkl. 20% USt.
Vertragsart
, Kauf
Wohnfläche
514 m2
Grundstück
2.005 m2
Freifläche
, Terrasse (2)
Bauart
Neubau: 1968
Beschreibung
Die Immobilie
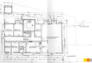
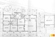
Auf einem etwa 2.005 m² großen, ebenen und gepflegten Grundstück gelangt ein großzügiges Haus, Baujahr 1968, zum Verkauf. Das Haus präsentiert sich in gutem Erhaltungszustand und wird mit einem Gaskessel beheizt. Die nutzbaren Flächen betragen etwa:
* Kellergeschoss: ca. 205 m²
* Erdgeschoss: ca. 210 m²
* Obergeschoss: ca. 209 m²,
* Dachgeschoss (teilweise ausgebaut): ca. 95 m²
* Doppelgarage: ca. 36 m²
* Terrasse: ca. 67 m²
_Das Haus wird derzeit von 2 Personen bewohnt, für die ein nicht verbüchertes Wohnrecht eingeräumt wurde. Det..
Auf einem etwa 2.005 m² großen, ebenen und gepflegten Grundstück gelangt ein großzügiges Haus, Baujahr 1968, zum Verkauf. Das Haus präsentiert sich in gutem Erhaltungszustand und wird mit einem Gaskessel beheizt. Die nutzbaren Flächen betragen etwa:
* Kellergeschoss: ca. 205 m²
* Erdgeschoss: ca. 210 m²
* Obergeschoss: ca. 209 m²,
* Dachgeschoss (teilweise ausgebaut): ca. 95 m²
* Doppelgarage: ca. 36 m²
* Terrasse: ca. 67 m²
_Das Haus wird derzeit von 2 Personen bewohnt, für die ein nicht verbüchertes Wohnrecht eingeräumt wurde. Det..
Mehr
Lage
Stockerau, Nordwest
Auswahl ändern
Anbieter

Anbieter
Walter Mitterstöger
Dr. Funk Immobilien GmbH & Co KGTelefon
+43 664 88 73...

Anbieter kontaktieren
