Grünruhelage am Waldrand! Familienidyll mit großem Garten, Schwimmbecken und Sauna
3002 Purkersdorf




















Objektinformation
Kosten
Kaufpreis€ 790.000
Provision
3% des Kaufpreises zzgl. 20% USt.
Vertragsart
, Kauf
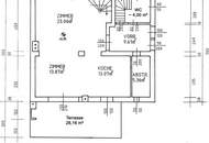
Wohnfläche
128 m2 (4 Zimmer)
Grundstück
1.470 m2
Freifläche
, Garten (1.255m²), Terrasse
Objektart
Massivhaus
Bauart
Neubau: 1995
Energie
HWB106 kWh/m²
HWB-KlasseD
fGEE1,27
fGEE-KlasseC
Energieausweis bis2035-04-28
Beschreibung
In herrlicher Grünruhelage direkt am Wienerwald erwartet Sie dieses charmante Einfamilienhaus – ideal für Familien, die naturnah leben und gleichzeitig stadtnah wohnen möchten. Die Wienerwaldstadt Purkersdorf punktet mit bester Infrastruktur: Kindergarten, Volksschule, Gymnasium, Ärzte, Einkaufsmöglichkeiten und das beliebte Wienerwaldbad befinden sich in kurzer Entfernung. Die ruhige, südwestlich ausgerichtete Lage am Waldrand garantiert höchste Lebensqualität – mit direktem Zugang zu Wanderwegen und Natur.
Auf ca. 128 m² Wohnfläche bietet das Haus alles, was das Familienleben angenehm..
Auf ca. 128 m² Wohnfläche bietet das Haus alles, was das Familienleben angenehm..
Mehr
Auswahl ändern
Anbieter

Anbieter
Irene Dräxler
Rudi Dräxler Immobilientreuhand GesmbHTelefon
+43 664 99...

Anbieter kontaktieren