Reihenhaus-Highlight mit schönem Garten - Einkauf, Schule und Öffis "vor der Türe"
1140 Wien, Penzing












Objektinformation
Kosten
Kaufpreis€ 790.000
Betriebskosten (netto)€ 201,33
Provision
3% des Kaufpreises zzgl. 20% USt.
Vertragsart
, Kauf
Wohnfläche
124 m2 (5 Zimmer)
Freifläche
, Terrasse
Energie
HWB102,99 kWh/m²
HWB-KlasseC
Energieausweis bis2033-01-08
Beschreibung
Zum Verkauf steht dieses gepflegte Reihenhaus in ausgezeichneter Lage des 14. Wiener Gemeindebezirks. Über drei Ebenen bietet es viel Platz, einen ruhigen Westgarten und eine hervorragende Infrastruktur in unmittelbarer Umgebung.
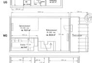
Im Untergeschoß befinden sich Diele mit Garderobe, Abstellräume, Lebensmittelkeller und separates WC. Das Mittelgeschoß überzeugt mit großzügigem Wohn- und Essbereich, Küche mit hochwertigen Miele-Geräten sowie Zugang zur Terrasse mit elektrischer Markise und zum liebevoll gestalteten Garten mit Gerätehäuschen. Im Obergeschoß erwarten Sie drei Zimmer, ein Schra..
Im Untergeschoß befinden sich Diele mit Garderobe, Abstellräume, Lebensmittelkeller und separates WC. Das Mittelgeschoß überzeugt mit großzügigem Wohn- und Essbereich, Küche mit hochwertigen Miele-Geräten sowie Zugang zur Terrasse mit elektrischer Markise und zum liebevoll gestalteten Garten mit Gerätehäuschen. Im Obergeschoß erwarten Sie drei Zimmer, ein Schra..
Mehr
Weitere Preisinformationen
- Sonstige Kosten€ 90,30
Auswahl ändern
Anbieter

Anbieter
Maximilian Cypris
Rudi Dräxler Immobilientreuhand GesmbHTelefon
+43 664 91...

Anbieter kontaktieren