PARKAPARTMENTS BELVEDERE! Zentrumsnahe 2-Zimmer Wohnung mit Balkon! Befristet vermietet!
1100 Wien, Favoriten

























Objektinformation
Kosten
Kaufpreis€ 385.000
Kaufpreis / m²€ 7.357,16
Betriebskosten (netto)€ 100,36
Provision
3% des Kaufpreises
Vertragsart
, Kauf
Wohnfläche
52,33 m2 (2 Zimmer)
Freifläche
, Balkon
Bauart
Neubau: 2019
Energie
HWB36,7 kWh/m²
HWB-KlasseB
fGEE0,81
fGEE-KlasseA
Energieausweis bis2035-06-02
Beschreibung
_PARKAPARTMENTS BELVEDERE! Moderne, zentrumsnahe 2-Zimmer Wohnung mit Balkon! Befristet vermietet!_
Zum Verkauf gelangt diese _topmoderne und hochwertig ausgestattete 2-Zimmer Wohnung mit Balkon_ in zentrumsnaher Lage, nahe Schloss Belvedere und Hauptbahnhof!
Die Wohnung ist bis 31.8.2028 befristet vermietet.
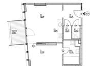
Im_ 8. Liftstock_ dieses modernen Neubaus (BJ 2019) mit hauseigenem Fitness- und Gemeinschaftsraum, verfügt diese Wohnung über _ca. 52,33 m² Wohnfläche _sowie über einen _ca. 5,75 m² grossen Balkon._
_Aufteilung/Ausstattung_
* ..
Zum Verkauf gelangt diese _topmoderne und hochwertig ausgestattete 2-Zimmer Wohnung mit Balkon_ in zentrumsnaher Lage, nahe Schloss Belvedere und Hauptbahnhof!
Die Wohnung ist bis 31.8.2028 befristet vermietet.
Im_ 8. Liftstock_ dieses modernen Neubaus (BJ 2019) mit hauseigenem Fitness- und Gemeinschaftsraum, verfügt diese Wohnung über _ca. 52,33 m² Wohnfläche _sowie über einen _ca. 5,75 m² grossen Balkon._
_Aufteilung/Ausstattung_
* ..
Mehr
Weitere Preisinformationen
- Heizkosten (netto)€ 121,09
- Sonstige Kosten€ 43,64
Auswahl ändern
Anbieter

Anbieter
Herzel Immobilien e.U.
HERZEL Immobilien e.U.Telefon
+43 1 3...

Anbieter kontaktieren