Büroflächen in zentralster Innenstadtlage / Radetzkystraße 1 / Jakomminiplatz / Top 501
8010 Graz


















137,6 m²4 Räume€ 1.795,70
Objektinformation
Kosten
Gesamtbelastung (brutto)€ 1.795,70
Gesamtbelastung (netto)€ 1.496,42
Kaltmiete (netto)€ 1.183,36
Kaltmiete€ 1.420,03
Miete / m²€ 10,32
Nebenkosten€ 313,06
Provision
3 Bruttomonatsmieten zzgl. 20% USt.
Kautionshinweis
3 BMM
Vertragsart
, Miete , unbefristet
Nutzfläche
137,6 m2 (4 Zimmer)
Energie
HWB88,2 kWh/m²
HWB-KlasseC
fGEE1,07
fGEE-KlasseC
Energieausweis bis2032-05-23
Beschreibung
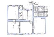
Diese ca. 137,60 m² große Büroeinheit befindet sich im 2. Lift-Stock des Hauses Radetzkystraße 1-3 am Jakomminiplatz in zentraler Lage.
Raumaufteilung: 4 Räume, Nebenräume, sanitäre Einrichtungen.
Ausstattung: Die Böden sind in erster Linie mit Laminat ausgestattet. Die Fenster sind aus Holz. Die Bürofläche wird mittels Fernwärme zentral beheizt.
Das Büro kann über einen Lift oder das Treppenhaus erreicht werden. Öffentliche Verkehrsmittel sind in unmittelbarer Nähe zum Objekt vorhanden. In der nahen Umgebung befinden sich Parkgaragen wo auch Dauerparkplätze angemietet w..
Raumaufteilung: 4 Räume, Nebenräume, sanitäre Einrichtungen.
Ausstattung: Die Böden sind in erster Linie mit Laminat ausgestattet. Die Fenster sind aus Holz. Die Bürofläche wird mittels Fernwärme zentral beheizt.
Das Büro kann über einen Lift oder das Treppenhaus erreicht werden. Öffentliche Verkehrsmittel sind in unmittelbarer Nähe zum Objekt vorhanden. In der nahen Umgebung befinden sich Parkgaragen wo auch Dauerparkplätze angemietet w..
Mehr
Weitere Preisinformationen
- Hauptmietzins (netto)€ 1.183,36
Auswahl ändern
Anbieter

Anbieter
Jan Sarkantyu
IMMOcontract Immobilien Vermittlung GmbHTelefon
00436644...

Anbieter kontaktieren