Geschäftslokal am Südtiroler Platz
8010 Graz
top ad








€ 1.999,52
Objektinformation
Kosten
Gesamtbelastung (netto)€ 1.999,52
Summe Miete (netto)€ 1.677,97
Miete / m²€ 7,64
Betriebskosten (netto)€ 321,55
Provision
3 Bruttomonatsmieten zzgl. 20% USt.
Kautionshinweis
3 Bruttomonatsmieten
Vertragsart
, Miete , unbefristet
Nutzfläche
keine Angabe
Energie
HWB58,7 kWh/m²
HWB-KlasseC
fGEE1,24
fGEE-KlasseC
Verfügbar
ab sofort
Beschreibung
Geschäftslokal mit Lagerkeller in der Feuerbachgasse 6 und damit direkt beim Südtiroler Platz zu vermieten!
Die Räumlichkeiten stehen ab sofort zur Vermietung und liegen in gut frequentierter Lage inmitten der Altstadt und sind sowohl mit öffentlichen Verkehrsmitteln als auch dem Auto erreichbar. Kurzparkzone direkt vor dem Haus, Straßenhanhaltestelle ca 50m entfernt.
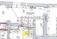
Das ebenerdige Geschäft ist von der Feuerbachgasse und der Andrägasse zu betreten und wird mit einem großen Lagerkeller vermietet. Sanitärräumlichkeinten sind bereits vorhanden.
+ Innenstadtlage neben dem K..
Die Räumlichkeiten stehen ab sofort zur Vermietung und liegen in gut frequentierter Lage inmitten der Altstadt und sind sowohl mit öffentlichen Verkehrsmitteln als auch dem Auto erreichbar. Kurzparkzone direkt vor dem Haus, Straßenhanhaltestelle ca 50m entfernt.
Das ebenerdige Geschäft ist von der Feuerbachgasse und der Andrägasse zu betreten und wird mit einem großen Lagerkeller vermietet. Sanitärräumlichkeinten sind bereits vorhanden.
+ Innenstadtlage neben dem K..
Mehr
Lage
Feuerbachgasse/ Ecke Südtirolerplatz
Auswahl ändern
Anbieter

Anbieter
Richard Böhm
IMMOcontract Immobilien Vermittlung GmbHTelefon
+43 664 60...

Anbieter kontaktieren