Attraktive Bürofläche in Top-Lage - Ebenerdig mit eigenem Eingang!
1110 Wien, Simmering










165,1 m²5 Räume€ 3.784,10
Objektinformation
Kosten
Gesamtbelastung (brutto)€ 3.784,10
Gesamtbelastung (netto)€ 3.153,41
Kaltmiete (netto)€ 2.522,73
Kaltmiete€ 3.027,28
Miete / m²€ 18,34
Nebenkosten€ 630,68
Provision
3 Bruttomonatsmieten zzgl. 20% USt.
Kautionshinweis
5 BBM
Vertragsart
, Miete , befristet
Nutzfläche
165,1 m2 (5 Zimmer)
Energie
HWB64,3 kWh/m²
HWB-KlasseC
fGEE0,8
fGEE-KlasseA
Energieausweis bis2028-03-14
Beschreibung
EBENERDIGES BÜRO MIT AUSGEZEICHNETER ERREICHBARKEIT UND RUHELAGE!
An der Simmeringer Hauptstraße nahe des Zentralfriedhofs gelegen, gelangt eine attraktive Bürofläche zur Vermietung. Ebenerdige und zentral begehbare Räume in Erstbezugsqualität!
Versehen mit Klimageräten und modernster Netzwerktechnik ist dieses Büro mit seiner Lage ein absoluter Geheimtipp: die Heizkosten sind bereits in die Betriebskosten integriert und der attraktive Mietpreis trägt ebenfalls zum perfekten Rundumpaket bei! Das alles zusammen mit der guten Frequenzlage ergeben ein sehr gefragtes Büro für Nutzun..
An der Simmeringer Hauptstraße nahe des Zentralfriedhofs gelegen, gelangt eine attraktive Bürofläche zur Vermietung. Ebenerdige und zentral begehbare Räume in Erstbezugsqualität!
Versehen mit Klimageräten und modernster Netzwerktechnik ist dieses Büro mit seiner Lage ein absoluter Geheimtipp: die Heizkosten sind bereits in die Betriebskosten integriert und der attraktive Mietpreis trägt ebenfalls zum perfekten Rundumpaket bei! Das alles zusammen mit der guten Frequenzlage ergeben ein sehr gefragtes Büro für Nutzun..
Mehr
Weitere Preisinformationen
- Hauptmietzins (netto)€ 2.522,73
Lage
Entlang der frequentierten Simmeringer Hauptstraße finden sich bekanntermaßen zahlreiche Einzelhandelsgeschäfte, Restaurants und Cafés, die in der Mittagspause zum Bummeln einladen!
Eine eigene Zufahrt führt Sie direkt vor Ihr neues Büro mit 5 Stellplätzen direkt vor dem Objekt.
Durch die perfekte Lage der Liegenschaft sind auch Straßenbahn- und Busstation quasi gegenüber und nur einen Katzensprung entfernt!
Sämtliche öffentliche Verkehrsmittel sind binnen weniger Minuten zu erreichen:
Tram 11 < 1 Minute
Bus 73 A < 1 Minute
Tram 71 < 1 Minute
Bus 69 A < 1 Minute
Mit Bus und Bahn erreichen Sie die U3- Endstation Simmering binnen weniger Minuten, zu Fuß ca. 10 Minuten.
Eine eigene Zufahrt führt Sie direkt vor Ihr neues Büro mit 5 Stellplätzen direkt vor dem Objekt.
Durch die perfekte Lage der Liegenschaft sind auch Straßenbahn- und Busstation quasi gegenüber und nur einen Katzensprung entfernt!
Sämtliche öffentliche Verkehrsmittel sind binnen weniger Minuten zu erreichen:
Tram 11 < 1 Minute
Bus 73 A < 1 Minute
Tram 71 < 1 Minute
Bus 69 A < 1 Minute
Mit Bus und Bahn erreichen Sie die U3- Endstation Simmering binnen weniger Minuten, zu Fuß ca. 10 Minuten.
Ausstattung
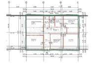
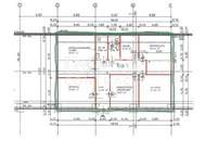
Dieses hochwertig ausgestattete 5-Zimmer-Büro mit rund 160 m² Nutzfläche befindet sich im Erdgeschoß. Sie besticht durch ihren wohldurchdachten Grundriss und teilt sich auf in:
- Sekretariat
- Büroraum 1
- Büroraum 2
- Büroraum 3
- Archiv/Lager
- WC Damen
- WC Herren
- Teeküche
- Sekretariat
- Büroraum 1
- Büroraum 2
- Büroraum 3
- Archiv/Lager
- WC Damen
- WC Herren
- Teeküche
Auswahl ändern
Anbieter

Anbieter
Gottfried Bischof
IMMOcontract Immobilien Vermittlung GmbHTelefon
0043676841...

Anbieter kontaktieren