Freundliche SINGLE-Wohnung mit Balkon in Innenhoflage - Fischergasse 23 - Top 13
8010 Graz, Fischergasse










31,7 m²1 Zimmer€ 481,03
Objektinformation
Kosten
Gesamtbelastung (brutto)€ 481,03
Gesamtbelastung (netto)€ 432,09
Gesamtmiete (brutto)€ 412,25
Gesamtmiete (netto)€ 374,77
Summe Miete (netto)€ 269,45
Betriebskosten (netto)€ 105,32
Provision
Gemäß Erstauftraggeberprinzip bezahlt der Abgeber die Provision.
Kautionshinweis
3 Bruttomonatsmieten
Vertragsart
, Miete , befristet
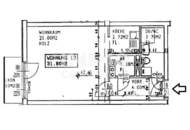
Wohnfläche
31,7 m2 (1 Zimmer)
Freifläche
, Balkon
Objektart
Etagenwohnung
Energie
HWB68,3 kWh/m²
HWB-KlasseC
fGEE1,43
fGEE-KlasseC
Energieausweis bis2031-10-12
Beschreibung
Diese charmante Etagenwohnung in der begehrten 2. Etage bietet Ihnen alles, was Sie für ein komfortables und modernes Leben benötigen. Mit einer großzügigen Fläche von 31,7 m² und einem durchdachten Grundriss ist diese 1-Zimmer-Wohnung ideal für Singles oder Paare.
RAUMAUFTEILUNG: Diese Wohnung verfügt über ein Vorzimmer, eine MINI-Küche, Bad/Toilette, und einen Wohn.-Schlafraum mit angrenzendem Balkon. Dieser Wohnung ist auch ein Kellerabteil zugeordnet.
AUSSTATTUNG: Zentralheizung, Parkett- und Fliesenboden, Kunststofffenster, Küche, Badezimmer unter anderem mit Waschmasc..
RAUMAUFTEILUNG: Diese Wohnung verfügt über ein Vorzimmer, eine MINI-Küche, Bad/Toilette, und einen Wohn.-Schlafraum mit angrenzendem Balkon. Dieser Wohnung ist auch ein Kellerabteil zugeordnet.
AUSSTATTUNG: Zentralheizung, Parkett- und Fliesenboden, Kunststofffenster, Küche, Badezimmer unter anderem mit Waschmasc..
Mehr
Weitere Preisinformationen
- Heizkosten (netto)€ 57,32
Lage
Diese charmante Etagenwohnung in der Fischergasse 8010 Graz besticht durch ihre zentrale Lage. In unmittelbarer Nähe finden Sie Einkaufsmöglichkeiten wie Supermärkte und Bäckereien sind fußläufig erreichbar. Auch Banken, Geldautomaten, Post sowie öffentliche Verkehrsanbindungen wie Bus und Straßenbahn liegen direkt vor der Tür. Hier wohnen Sie urban und komfortabel!
Zusatzinformationen
bei Bedarf kann ein überdachter Autoabstellplatz gesondert angemietet werden
Auswahl ändern
Anbieter

Anbieter
Jan Sarkantyu
IMMOcontract Immobilien Vermittlung GmbHTelefon
+43 664 423...

Anbieter kontaktieren