Top Straßenlokal und Büro nahe U1 Kagraner Platz zu leistbarer Miete!
1220 Wien, Donaustadt, Donaufelderstraße












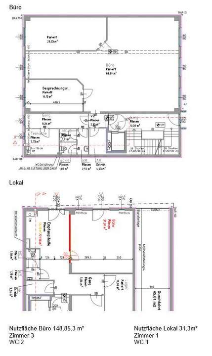
148,85 m²4 Räume€ 3.839,40
Objektinformation
Kosten
Gesamtbelastung (brutto)€ 3.839,40
Gesamtbelastung (netto)€ 3.199,50
Summe Miete (netto)€ 2.785,83
Betriebskosten (netto)€ 413,67
Provision
3.00 MM
Kautionshinweis
€ 6.000,00
Vertragsart
, Miete , unbefristet
Nutzfläche
148,85 m2 (4 Zimmer)
Beschreibung
Nur 3 Minuten fußläufig von der von der U Bahnstation U1 Kagraner Platz befindet sich dieses gut ausgestattete Geschäftslokalan der Donaufelderstraße mit Büro im 1. Stock (Internet, Glasfaseranschluss, optional Klimaanlage, Lift).
Auch mit der Straßenbahnlinie 26 sowie den Busverbindungen 22A, 24A, 31A ist der Arbeitsplatz direkt erreichbar. Ideal für jeden Dienstleistungsbetrieb, der Raumbedarf in dieser Größe hat. In der hauseigenen Tiefgarage ist ein Parkplatz anmietbar (ein weiterer nach Verfügbarkeit).
Für etwaige größere Veranstaltungen können Sie auch den Seminarraum im 2. Stock ..
Auch mit der Straßenbahnlinie 26 sowie den Busverbindungen 22A, 24A, 31A ist der Arbeitsplatz direkt erreichbar. Ideal für jeden Dienstleistungsbetrieb, der Raumbedarf in dieser Größe hat. In der hauseigenen Tiefgarage ist ein Parkplatz anmietbar (ein weiterer nach Verfügbarkeit).
Für etwaige größere Veranstaltungen können Sie auch den Seminarraum im 2. Stock ..
Mehr
Weitere Preisinformationen
- MwSt. Satz20,00 %
Auswahl ändern
Anbieter

Anbieter
Claudia Avramovic
IMMODIENST Immobilienservice GmbHTelefon
+436645...

Anbieter kontaktieren