Unbefristet vermietetes Geschäftslokal im Herzen Wiens.
1010 Wien, Innere Stadt











16 m²€ 248.000
Objektinformation
Kosten
Kaufpreis€ 248.000
Kaufpreis / m²€ 15.500,00
Betriebskosten (netto)€ 34,65
Provision
3%
Vertragsart
, Kauf
Nutzfläche
16 m2
Bauart
Altbau: 1792
Energie
HWB116,8 kWh/m²
HWB-KlasseD
fGEE2,25
fGEE-KlasseD
Beschreibung
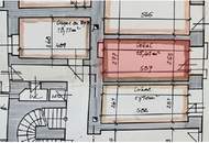
Zum Verkauf gelangt dieses super gelegene Geschäftslokal im 1. Bezirk - Stephansdom und Schwedenplatz ums Eck!
Das ca. 16 m² große Lokal liegt im Erdgeschoss eines gepflegten Altbaus und befindet sich in ausgezeichneter Lage.
Die Details:
- Wohnungseigentumsobjekt
- Lokal, Durchgang, WC
- kein Aufzug
- Unter Denkmalschutz
- seit September 2013 unbefristet für netto € 1.357,60 vermietet
Lage-Highlights:
- U1/U3 - Stephansplatz, Straßenbahn 1/2 - Schwedenplatz
- Stephansplatz
- Donaukanal
Der <..
Das ca. 16 m² große Lokal liegt im Erdgeschoss eines gepflegten Altbaus und befindet sich in ausgezeichneter Lage.
Die Details:
- Wohnungseigentumsobjekt
- Lokal, Durchgang, WC
- kein Aufzug
- Unter Denkmalschutz
- seit September 2013 unbefristet für netto € 1.357,60 vermietet
Lage-Highlights:
- U1/U3 - Stephansplatz, Straßenbahn 1/2 - Schwedenplatz
- Stephansplatz
- Donaukanal
Der <..
Mehr
Weitere Preisinformationen
- Provision (netto)€ 7.440,00
- Provision (brutto)€ 8.928,00
- Sonstige Kosten€ 42,70
Auswahl ändern
Anbieter kontaktieren

