Charmante und geräumige 2-Zimmer-Wohnung!
1100 Wien, Favoriten, Inzersdorfer Straße





















Objektinformation
Kosten
Kaufpreis€ 189.000
Kaufpreis / m²€ 3.258,62
Betriebskosten (netto)€ 159,56
Provision
3%
Vertragsart
, Kauf
Wohnfläche
58 m2 (2 Zimmer)
Bauart
Altbau: 1900
Energie
HWB59 kWh/m²
HWB-KlasseC
fGEE1,41
fGEE-KlasseC
Beschreibung
Sichern Sie sich diese super geschnittene 2-Zimmer-Wohnung in Favoriten - nahe dem Wienerberg.
Bitte beachten Sie, dass es ich bei den Fotos um Archivbilder handelt.
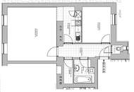
Die ca. 58 m² große Wohnung befindet sich im 4. Obergeschoss eines stilvoll sanierten Altbaus und überzeugt neben ihrer funktionalen sowie lichtdurchfluteten Raumaufteilung durch ihre Top-Lage.
Die Details:
- Wohnungseigentumsobjekt
- Vorraum, Badezimmer, WC, Abstellraum, Zimmer, Wohnraum, Küche
- Fernwärmeheizung
Bitte beachten Sie, dass es ich bei den Fotos um Archivbilder handelt.
Die ca. 58 m² große Wohnung befindet sich im 4. Obergeschoss eines stilvoll sanierten Altbaus und überzeugt neben ihrer funktionalen sowie lichtdurchfluteten Raumaufteilung durch ihre Top-Lage.
Die Details:
- Wohnungseigentumsobjekt
- Vorraum, Badezimmer, WC, Abstellraum, Zimmer, Wohnraum, Küche
- Fernwärmeheizung
Mehr
Auswahl ändern
Anbieter kontaktieren