Einraumtraum in Favoriten – Perfekt für Studierende & Singles!
1100 Wien, Favoriten, Buchengasse






















Objektinformation
Kosten
Kaufpreis€ 129.000
Kaufpreis / m²€ 3.794,12
Betriebskosten (netto)€ 104,81
Provision
3%
Vertragsart
, Kauf
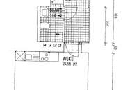
Wohnfläche
34 m2 (1 Zimmer)
Bauart
Altbau: 1900
Energie
HWB88,8 kWh/m²
HWB-KlasseC
fGEE1,7
fGEE-KlasseC
Beschreibung
Sichern Sie sich diese smart geschnittene Wohnung nahe dem Amalienbad.
Die ca. 34 m² große Wohnung befindet sich im 2. Obergeschoss eines sanierten Altbaus und überzeugt neben ihrer funktionalen sowie lichtdurchfluteten Raumaufteilung durch ihre Top-Lage.
Die Details:
- Wohnungseigentumsobjekt
- Vorraum, Badezimmer mit Dusche und WC, Wohnraum mit Küchenzeile
- Fernwärmeheizung
- Aufzug vorhanden
- Leerstand
- Je nach Bedarf kann auch ein Stellplatz in der hauseigenen Garage erworben werd..
Die ca. 34 m² große Wohnung befindet sich im 2. Obergeschoss eines sanierten Altbaus und überzeugt neben ihrer funktionalen sowie lichtdurchfluteten Raumaufteilung durch ihre Top-Lage.
Die Details:
- Wohnungseigentumsobjekt
- Vorraum, Badezimmer mit Dusche und WC, Wohnraum mit Küchenzeile
- Fernwärmeheizung
- Aufzug vorhanden
- Leerstand
- Je nach Bedarf kann auch ein Stellplatz in der hauseigenen Garage erworben werd..
Mehr
Auswahl ändern
Anbieter kontaktieren