3,7 %BAR - Langfristige Rendite sichern! Unbefristet vermietete Altbauwohnung
1150 Wien, Rudolfsheim-Fünfhaus, Loeschenkohlgasse













Objektinformation
Kosten
Kaufpreis€ 249.000
Kaufpreis / m²€ 3.036,59
Betriebskosten (netto)€ 179,89
Provision
3%
Vertragsart
, Kauf
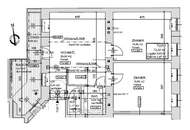
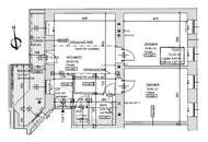
Wohnfläche
82 m2 (3 Zimmer)
Freifläche
, Balkon
Bauart
Altbau: 1913
Energie
HWB48 kWh/m²
HWB-KlasseB
fGEE1,08
fGEE-KlasseC
Beschreibung
Diese charmante Immobilie aus dem Jahr 1913 bietet eine attraktive Wohnfläche von etwa 82 m².
Die zentrale Lage im Herzen des 15. Bezirks, gepaart mit der Nähe zu vielfältigen Einkaufs- und Freizeitmöglichkeiten, macht diese Liegenschaft besonders attraktiv. Das Gebäude wurde 2005 umfassend saniert und das Dachgeschoß ausgebaut.
DIE HIGHLIGHTS:
*monatliche Mieteinnahmen netto € 771,91 (exklusive Betriebskosten)
*keine Eigennutzung
*Balkon/Loggia
*Aufzug vorhanden
*Ca. 2 m² Kellerabteil
*Küche inkl. aller Elektro-Einbaugeräte
*Kinderwagen/..
Mehr
Auswahl ändern
Anbieter kontaktieren

