Fabiani Haus - Open Space Bürofläche zu mieten
1030 Wien, Landstraße, Ungargasse

















163 m²2 Räume€ 3.849,28
Objektinformation
Kosten
Gesamtbelastung (brutto)€ 3.849,28
Gesamtbelastung (netto)€ 3.207,73
Gesamtmiete (brutto)€ 3.626,29
Gesamtmiete (netto)€ 3.021,91
Summe Miete (netto)€ 2.608,00
Miete / m²€ 16,00
Betriebskosten (netto)€ 413,91
Provision
3 BMM
Kautionshinweis
€ 23.095,68, 6 MM
Vertragsart
, Miete , befristet
Nutzfläche
163 m2 (2 Zimmer)
Bauart
Neubau: 1900
Energie
HWB63,2 kWh/m²
HWB-KlasseC
fGEE1,13
fGEE-KlasseC
Verfügbar
ab sofort
Beschreibung
Flächen- und Kostenübersicht
Geschoß: 2.OG./3.3 FAB
Nutzfläche: ca.163 m²
Nettomiete/m²: € 16,00
BK netto /m²: € 2,57
HK netto/m²: € 1,14
Für die Erstellung des Mietvertrags gelangt seitens der Hausverwaltung ein Betrag von EUR 249,- brutto zur Verrechnung.
Allgemeine Objektbeschreibung
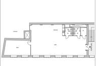
Zur Vermietung gelangt im 2.OG eine ca. 163 m² große, moderne Bürofläche. Das Objekt gliedert sich in ein abgetrenntes Büro und eine großzügige Open-Space Fläche mit integrierter moderner Küchenzeile. Zusätzlich sind getrennte Sanitärbereiche sowie ein..
Geschoß: 2.OG./3.3 FAB
Nutzfläche: ca.163 m²
Nettomiete/m²: € 16,00
BK netto /m²: € 2,57
HK netto/m²: € 1,14
Für die Erstellung des Mietvertrags gelangt seitens der Hausverwaltung ein Betrag von EUR 249,- brutto zur Verrechnung.
Allgemeine Objektbeschreibung
Zur Vermietung gelangt im 2.OG eine ca. 163 m² große, moderne Bürofläche. Das Objekt gliedert sich in ein abgetrenntes Büro und eine großzügige Open-Space Fläche mit integrierter moderner Küchenzeile. Zusätzlich sind getrennte Sanitärbereiche sowie ein..
Mehr
Weitere Preisinformationen
- Provision (netto)€ 9.623,19
- Provision (brutto)€ 11.547,83
- Hauptmietzins (netto)€ 2.608,00
- Heizkosten (netto)€ 185,82
Auswahl ändern
Anbieter

Anbieter
Kathrin Fercher
J + P Immobilienmakler GmbHTelefon
0699/ 17 55...

Anbieter kontaktieren