Altbau-Sanierungsobjekt mit Entwicklungspotenzial
1090 Wien, Alsergrund, Löblichgasse



















Objektinformation
Kosten
Kaufpreis€ 219.000
Kaufpreis / m²€ 5.746,52
Betriebskosten (netto)€ 106,48
Provision
3%
Vertragsart
, Kauf
Wohnfläche
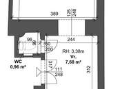
38,11 m2 (1 Zimmer)
Bauart
Altbau
Energie
HWB216,5 kWh/m²
HWB-KlasseF
fGEE2,94
fGEE-KlasseE
Verfügbar
ab sofort
Beschreibung
Diese kompakte Altbauwohnung im 1. Obergeschoss verfügt über ein Zimmer, einen Vorraum, eine separate Küche mit Duschmöglichkeit sowie ein WC.
Die Raumhöhen von bis zu über 3 Metern unterstreichen den klassischen Wiener Altbaucharakter.
Die Wohnung befindet sich in vollständig sanierungsbedürftigem Zustand. Sämtliche Oberflächen, Installationen, Sanitär- und Küchenausstattung sind erneuerungsbedürftig. Eine umfassende Generalsanierung ist einzuplanen.
Aufgrund der klaren, funktionalen Grundstruktur bietet die Einheit eine solide Basis für eine vollständige Neugestaltung nach e..
Die Raumhöhen von bis zu über 3 Metern unterstreichen den klassischen Wiener Altbaucharakter.
Die Wohnung befindet sich in vollständig sanierungsbedürftigem Zustand. Sämtliche Oberflächen, Installationen, Sanitär- und Küchenausstattung sind erneuerungsbedürftig. Eine umfassende Generalsanierung ist einzuplanen.
Aufgrund der klaren, funktionalen Grundstruktur bietet die Einheit eine solide Basis für eine vollständige Neugestaltung nach e..
Mehr
Weitere Preisinformationen
- Provision (netto)€ 6.570,00
- Provision (brutto)€ 7.884,00
- Sonstige Kosten€ 1,00
Auswahl ändern
Anbieter

Anbieter
Iman Ajdari
J + P Immobilienmakler GmbHTelefon
+43 699 17 55...

Anbieter kontaktieren