360° TOUR // VINEYARD RESIDENCES - GESCHÄFTSLOKAL in NEUSTIFT AM WALDE
1190 Wien, Döbling















75,01 m²€ 299.000
Objektinformation
Kosten
Kaufpreis€ 299.000
Provision
3% des Kaufpreises
Vertragsart
, Kauf
Nutzfläche
75,01 m2
Energie
HWB47,6 kWh/m²
HWB-KlasseB
Verfügbar
ab sofort
Beschreibung
ERSTBEZUG-NEUBAUEIGENTUMS-BÜRO IN NEUSTIFT
Im Herzen von Neustift am Walde gelangt eine exklusive Eigentumsgeschäftslokal mit ca. 75m² Bürofläche zum Verkauf
Die Wohnung befindet sich im ersten Obergeschoss eines Mehrparteienhauses mit 4 Wohneinheiten, welches im Jahre 2021 errichtet wurde.
Das Gebäude ist voll unterkellert und verfügt über einen Personenaufzug und eine hauseigene Tiefgarage.
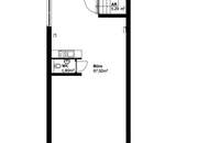
Raumaufteilung:
Das Büro mit ca. 75,01 m² Bürofläche liegt im Erdgeschoss und gliedert sich in folgende Räume:
Büro ca. 67,92 m²
separate Toilette mit Handwaschbecke..
Im Herzen von Neustift am Walde gelangt eine exklusive Eigentumsgeschäftslokal mit ca. 75m² Bürofläche zum Verkauf
Die Wohnung befindet sich im ersten Obergeschoss eines Mehrparteienhauses mit 4 Wohneinheiten, welches im Jahre 2021 errichtet wurde.
Das Gebäude ist voll unterkellert und verfügt über einen Personenaufzug und eine hauseigene Tiefgarage.
Raumaufteilung:
Das Büro mit ca. 75,01 m² Bürofläche liegt im Erdgeschoss und gliedert sich in folgende Räume:
Büro ca. 67,92 m²
separate Toilette mit Handwaschbecke..
Mehr
Zusatzinformationen
ANSCHLÜSSE
Gas: vorhanden
Kanal: nicht vorhanden
Wasser: vorhanden
Strom: vorhanden
Starkstrom: vorhanden
Brunnen: nicht vorhanden
Telefon: möglich
TV Kabel: möglich
TV Sat: möglich
Internet: möglich
Fernwärme: nicht vorhanden
Senkgrube: nicht vorhanden
Auswahl ändern
Anbieter

Anbieter
Robin Kalandra
KALANDRA Immobilien Robert Kalandra e.U.Telefon
+43-69911...

Anbieter kontaktieren
Downloads zum Objekt
Virtuelle Besichtigung