360° TOUR // EINFAMILIENHAUS in ruhiger COTTAGELAGE von STRASSHOF // FULLY FURNISHED DETACHED HOUSE in quiet COTTAGE AREA of "STRASSHOF"
2231 Strasshof an der Nordbahn






























Objektinformation
Kosten
Kaufpreis€ 300.000
Betriebskosten (netto)€ 189,00
Provision
3% des Kaufpreises zzgl. 20% USt.
Vertragsart
, Kauf
Wohnfläche
110,15 m2 (5 Zimmer)
Freifläche
, Terrasse
Energie
HWB113,8 kWh/m²
HWB-KlasseD
fGEE1,6
fGEE-KlasseC
Verfügbar
ab sofort
Beschreibung
EINFAMILIENHAUS mit ruhigem und sonnigen GARTEN
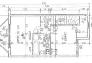
Das Haus mit idealer Ausrichtung nach Süd-Westen liegt in einer gepflegten Reihenhausanlage in der Gemeinde Strasshof.
Raumaufteilung:
Hochparterre:
großzügiger Vorraum (ca. 5m²) mit Gäste-WC, Wohnzimmer (ca. 23,40m² ), Küche (ca. 8m²)
vom Vorraum führt eine Innenstiege in den
1.Stock:
Vorraum/ Diele (ca. 3m²), zwei Schlafzimmer (ca. 15m² & 11m²), Badezimmer mit Wanne, Dusche & WC (ca. 5m²) sowie ein begehbarer Schrankraum (ca. 3m²);
Dachgeschoß:
Studio im ausgebauten Dachboden (ca. 20m²)
..
Das Haus mit idealer Ausrichtung nach Süd-Westen liegt in einer gepflegten Reihenhausanlage in der Gemeinde Strasshof.
Raumaufteilung:
Hochparterre:
großzügiger Vorraum (ca. 5m²) mit Gäste-WC, Wohnzimmer (ca. 23,40m² ), Küche (ca. 8m²)
vom Vorraum führt eine Innenstiege in den
1.Stock:
Vorraum/ Diele (ca. 3m²), zwei Schlafzimmer (ca. 15m² & 11m²), Badezimmer mit Wanne, Dusche & WC (ca. 5m²) sowie ein begehbarer Schrankraum (ca. 3m²);
Dachgeschoß:
Studio im ausgebauten Dachboden (ca. 20m²)
..
Mehr
Auswahl ändern
Anbieter

Anbieter
Robin Kalandra
KALANDRA Immobilien Robert Kalandra e.U.Telefon
+43-69911...

Anbieter kontaktieren
Downloads zum Objekt
Virtuelle Besichtigung