360° TOUR // TERRASSEN - NEUBAUWOHNUNG IM COTTAGE
1190 Wien, Döbling

Virtuelle Tour Nr. 1




































172 m²6 Zimmer€ 3.499,62
Objektinformation
Kosten
Gesamtbelastung (brutto)€ 3.499,62
Gesamtbelastung (netto)€ 3.181,47
Summe Miete (netto)€ 2.800,00
Betriebskosten (netto)€ 322,88
Provision
Gemäß Erstauftraggeberprinzip bezahlt der Abgeber die Provision.
Kautionshinweis
€ 11.000,00
Vertragsart
, Miete , befristet
Wohnfläche
172 m2 (6 Zimmer)
Freifläche
, Terrasse
Verfügbar
ab sofort
Beschreibung
NEUBAUWOHNUNG mit SÜDTERRASSE im DÖBLINGER COTTAGE
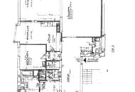
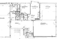
Diese 6-Zimmer Neubauwohnung (BJ 1977) mit einer Wohnfläche von ca. 175m² ist mitten im Cottagegebiet des 19. Bezirks gelegen und bietet einen schönen Wienblick sowie folgende
Raumaufteilung:
zentrales Vorzimmer, großes Wohn-/ Esszimmer(ca. 61m²) mit Ausgang auf eine 12m² große, gartenseitige Süd-Terrasse, Küche mit Eßplatz (ca. 15m²), 4 Schlafzimmer (2x ca. 13m² & 1x ca. 18m²) und ein Schlaf-/ Kabinett (ca. 9m²) mit Duschnische, Badezimmer mit Wanne und Bidet, zwei separate WC, begehbare Garderobe/ Abstellraum.
Aus..
Diese 6-Zimmer Neubauwohnung (BJ 1977) mit einer Wohnfläche von ca. 175m² ist mitten im Cottagegebiet des 19. Bezirks gelegen und bietet einen schönen Wienblick sowie folgende
Raumaufteilung:
zentrales Vorzimmer, großes Wohn-/ Esszimmer(ca. 61m²) mit Ausgang auf eine 12m² große, gartenseitige Süd-Terrasse, Küche mit Eßplatz (ca. 15m²), 4 Schlafzimmer (2x ca. 13m² & 1x ca. 18m²) und ein Schlaf-/ Kabinett (ca. 9m²) mit Duschnische, Badezimmer mit Wanne und Bidet, zwei separate WC, begehbare Garderobe/ Abstellraum.
Aus..
Mehr
Weitere Preisinformationen
- Sonstige Kosten€ 58,59
Auswahl ändern
Anbieter

Anbieter
Robin Kalandra
KALANDRA Immobilien Robert Kalandra e.U.Telefon
+43-69911...

Anbieter kontaktieren
Downloads zum Objekt
Virtuelle Besichtigung