IHRE IDEE. IHR GESCHÄFT. IHR ORT.
1220 Wien, Donaustadt, Donaufelderstraße


























€ 447.088
Objektinformation
Kosten
Kaufpreis€ 447.088
Vertragsart
, Kauf
Nutzfläche
keine Angabe
Energie
HWB26 kWh/m²
HWB-KlasseB
fGEE0,7
fGEE-KlasseA+
Energieausweis bis2031-05-13
Beschreibung
Ihre Idee verdient Raum – und die richtige Adresse.
Inmitten eines der dynamischsten Stadtteile Wiens bietet sich mit dieser ca. 172 m² großen Geschäftsfläche eine seltene Gelegenheit: eine Immobilie in Bestlage an der Donaufelder Straße – unweit der U1 Kagran – mit exzellenter Sichtbarkeit und enormem Potenzial zur individuellen Nutzung.
Die Fläche befindet sich im Erdgeschoss eines modernen Neubaus, ist vollständig barrierefrei zugänglich und wird belagsfertig übergeben. Das ermöglicht es Käuferinnen und Käufern, den Innenausbau exakt nach ihren Vorstellungen zu gestalten – sei es ..
Inmitten eines der dynamischsten Stadtteile Wiens bietet sich mit dieser ca. 172 m² großen Geschäftsfläche eine seltene Gelegenheit: eine Immobilie in Bestlage an der Donaufelder Straße – unweit der U1 Kagran – mit exzellenter Sichtbarkeit und enormem Potenzial zur individuellen Nutzung.
Die Fläche befindet sich im Erdgeschoss eines modernen Neubaus, ist vollständig barrierefrei zugänglich und wird belagsfertig übergeben. Das ermöglicht es Käuferinnen und Käufern, den Innenausbau exakt nach ihren Vorstellungen zu gestalten – sei es ..
Mehr
Lage
Lage & Infrastruktur
Zwischen Stadt und Natur: Die Donaufelderstraße bietet urbanen Komfort in grüner Umgebung.
Die Anbindung ist top – mit der Straßenbahnlinie 25 und mehreren Buslinien gelangen Sie schnell zur U1 Kagran und ins Donauzentrum.
Alles für den Alltag finden Sie gleich ums Eck: Hofer, Billa, Penny, Apotheken, Drogerien und mehr – bequem zu Fuß erreichbar.
Perfekt für Familien: Kindergärten, Schulen und internationale Bildungseinrichtungen sind in unmittelbarer Nähe.
Erholung garantiert: Alte Donau, Mühlwasser und Donaupark laden zu Spaziergängen, Sport oder entspannten Stunden am Wasser ein.
Und wer gerne genießt, wird hier fündig – vom Wiener Beisl bis zur internationalen Küche ist alles da.
Nahversorger
Bäcker
Hubert Nöbauer Gesellschaft m.b.H. Donaufelder Str. 234 1220 Wien (0,34 km / 0,35 km)
Patrick Pernegger (Alles Schokolade) Meißauergasse 2A/5/21 1220 Wien (0,31 km / 0,40 km)
Metzgerei
Radatz Fleischwaren-Vertriebsgesellschaft Wagramer Straße 83 1220 Wien (0,91 km / 1,14 km)
ÜNAL & Co. HandelsgmbH. (ETSAN) Rennbahnweg 46/Stiege III 1220 Wien (1,35 km / 1,75 km)
Supermarkt
Billa Donaufelder Straße 177 1220 Wien (0,30 km / 0,30 km)
Sozialmarkt Donaustadt Ullreichgasse 13 1220 Wien (0,29 km / 0,40 km)
Drogerie
Bipa Kagraner Platz 43891 1220 Wien (0,67 km / 0,67 km)
dm Doningasse 12 1220 Wien (0,62 km / 0,71 km)
Bank
Raiffeisenbank 1220 Wien (0,55 km / 0,56 km)
Erste Bank Wagramer Straße 127 1220 Wien (0,55 km / 0,71 km)
Post
Post Filiale 1222 Wagramer Straße 162 1222 Wien (0,71 km / 0,78 km)
Post Filiale 1229 Schrödingerplatz 2 1220 Wien (1,08 km / 1,53 km)
Tankstelle
JET Donaufelder Straße 135 1210 Wien (0,71 km / 0,76 km)
DISKONT Tankstelle (HOFER Parkplatz) Donaufelder Straße 137 1210 Wien (0,65 km / 0,82 km)
Restaurant
Selam Restaurant Donaufelder Straße 229 1220 Wien (0,24 km / 0,24 km)
Tokyo House Donaufelder Straße 162 1220 Wien (0,35 km / 0,39 km)
Bar/Lokal
Albatros Donaufelder Straße 250 1220 Wien (0,53 km / 0,53 km)
Kagraner Kistl Wagramer Straße 125 1220 Wien (0,56 km / 0,67 km)
e
Bildungsinstitute
Kinderbetreuung
Children´s World 1 Attemsgasse 43 1220 Wien (0,13 km / 0,17 km)
Aladin und Badrulbadur Donaufelderstraße 181 1220 Wien (0,18 km / 0,18 km)
Volksschule
VS Klenaugasse 12 1220 Wien (0,29 km / 0,35 km)
GTVS Attemsgasse Attemsgasse 22 1220 Wien (0,32 km / 0,39 km)
Schule
MS Anton-Sattler-Gasse 93 1220 Wien (0,47 km / 0,71 km)
Hochschule
Fachhochschule Technikum Wien (2,42 km / 2,68 km)
Ärzte
Arzt für Allgemeinmedizin
Dr. Georg Hess Donaufelder Straße 224-228/1/9 1220 Wien (0,30 km / 0,30 km)
Dr. Monica Reisel-Bernecker Tokiostraße 14/3 1220 Wien (0,36 km / 0,43 km)
Zahnarzt
Dr. Dévényi Erika Meissauergasse 15 1220 Wien (0,45 km / 0,54 km)
Dr. Baczynski Martin Doeltergasse 3 1220 Wien (0,35 km / 0,57 km)
Facharzt
Dr. Beran Claudia Donaufelder Straße 198 1220 Wien (0,05 km / 0,05 km)
Dr. Patri Philipp Donaufelder Straße 198 1220 Wien (0,05 km / 0,05 km)
Öffentliche Verkehrsmittel
Bus
Saikogasse 27A Wien (0,07 km / 0,09 km)
Attemsgasse 27A Wien (0,32 km / 0,37 km)
U-Bahn
Kagraner Platz U1 Wien (0,61 km / 0,64 km)
Kagran U1 Wien (0,88 km / 1,01 km)
Straßenbahn
Saikogasse 26 Wien (0,06 km / 0,06 km)
Josef-Baumann-Gasse 26 Wien (0,33 km / 0,33 km)
Lokalbahnhof
Siemensstraße S1, S2 Wien (2,47 km / 3,17 km)
Zwischen Stadt und Natur: Die Donaufelderstraße bietet urbanen Komfort in grüner Umgebung.
Die Anbindung ist top – mit der Straßenbahnlinie 25 und mehreren Buslinien gelangen Sie schnell zur U1 Kagran und ins Donauzentrum.
Alles für den Alltag finden Sie gleich ums Eck: Hofer, Billa, Penny, Apotheken, Drogerien und mehr – bequem zu Fuß erreichbar.
Perfekt für Familien: Kindergärten, Schulen und internationale Bildungseinrichtungen sind in unmittelbarer Nähe.
Erholung garantiert: Alte Donau, Mühlwasser und Donaupark laden zu Spaziergängen, Sport oder entspannten Stunden am Wasser ein.
Und wer gerne genießt, wird hier fündig – vom Wiener Beisl bis zur internationalen Küche ist alles da.
Nahversorger
Bäcker
Hubert Nöbauer Gesellschaft m.b.H. Donaufelder Str. 234 1220 Wien (0,34 km / 0,35 km)
Patrick Pernegger (Alles Schokolade) Meißauergasse 2A/5/21 1220 Wien (0,31 km / 0,40 km)
Metzgerei
Radatz Fleischwaren-Vertriebsgesellschaft Wagramer Straße 83 1220 Wien (0,91 km / 1,14 km)
ÜNAL & Co. HandelsgmbH. (ETSAN) Rennbahnweg 46/Stiege III 1220 Wien (1,35 km / 1,75 km)
Supermarkt
Billa Donaufelder Straße 177 1220 Wien (0,30 km / 0,30 km)
Sozialmarkt Donaustadt Ullreichgasse 13 1220 Wien (0,29 km / 0,40 km)
Drogerie
Bipa Kagraner Platz 43891 1220 Wien (0,67 km / 0,67 km)
dm Doningasse 12 1220 Wien (0,62 km / 0,71 km)
Bank
Raiffeisenbank 1220 Wien (0,55 km / 0,56 km)
Erste Bank Wagramer Straße 127 1220 Wien (0,55 km / 0,71 km)
Post
Post Filiale 1222 Wagramer Straße 162 1222 Wien (0,71 km / 0,78 km)
Post Filiale 1229 Schrödingerplatz 2 1220 Wien (1,08 km / 1,53 km)
Tankstelle
JET Donaufelder Straße 135 1210 Wien (0,71 km / 0,76 km)
DISKONT Tankstelle (HOFER Parkplatz) Donaufelder Straße 137 1210 Wien (0,65 km / 0,82 km)
Restaurant
Selam Restaurant Donaufelder Straße 229 1220 Wien (0,24 km / 0,24 km)
Tokyo House Donaufelder Straße 162 1220 Wien (0,35 km / 0,39 km)
Bar/Lokal
Albatros Donaufelder Straße 250 1220 Wien (0,53 km / 0,53 km)
Kagraner Kistl Wagramer Straße 125 1220 Wien (0,56 km / 0,67 km)
e
Bildungsinstitute
Kinderbetreuung
Children´s World 1 Attemsgasse 43 1220 Wien (0,13 km / 0,17 km)
Aladin und Badrulbadur Donaufelderstraße 181 1220 Wien (0,18 km / 0,18 km)
Volksschule
VS Klenaugasse 12 1220 Wien (0,29 km / 0,35 km)
GTVS Attemsgasse Attemsgasse 22 1220 Wien (0,32 km / 0,39 km)
Schule
MS Anton-Sattler-Gasse 93 1220 Wien (0,47 km / 0,71 km)
Hochschule
Fachhochschule Technikum Wien (2,42 km / 2,68 km)
Ärzte
Arzt für Allgemeinmedizin
Dr. Georg Hess Donaufelder Straße 224-228/1/9 1220 Wien (0,30 km / 0,30 km)
Dr. Monica Reisel-Bernecker Tokiostraße 14/3 1220 Wien (0,36 km / 0,43 km)
Zahnarzt
Dr. Dévényi Erika Meissauergasse 15 1220 Wien (0,45 km / 0,54 km)
Dr. Baczynski Martin Doeltergasse 3 1220 Wien (0,35 km / 0,57 km)
Facharzt
Dr. Beran Claudia Donaufelder Straße 198 1220 Wien (0,05 km / 0,05 km)
Dr. Patri Philipp Donaufelder Straße 198 1220 Wien (0,05 km / 0,05 km)
Öffentliche Verkehrsmittel
Bus
Saikogasse 27A Wien (0,07 km / 0,09 km)
Attemsgasse 27A Wien (0,32 km / 0,37 km)
U-Bahn
Kagraner Platz U1 Wien (0,61 km / 0,64 km)
Kagran U1 Wien (0,88 km / 1,01 km)
Straßenbahn
Saikogasse 26 Wien (0,06 km / 0,06 km)
Josef-Baumann-Gasse 26 Wien (0,33 km / 0,33 km)
Lokalbahnhof
Siemensstraße S1, S2 Wien (2,47 km / 3,17 km)
Ausstattung
Your idea deserves space — and the right address.
Located in one of Vienna’s most dynamic districts, this approximately 183 m² commercial space presents a rare opportunity: a prime property on Donaufelder Straße — close to the U1 Kagran station — offering excellent visibility and immense potential for customized use.
The unit is situated on the ground floor of a modern new building, fully accessible without barriers, and delivered in a shell condition. This allows buyers to tailor the interior design precisely to their needs — whether for a high-end retail store, medical practice, office, or service business.
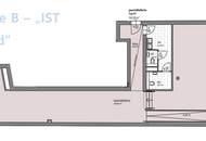
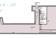
Thanks to the L-shaped floor plan, a wide variety of spatial layouts can be realized. Large glass fronts facing the street provide visibility and a prestigious presence.
Key details at a glance:
– Living space: approx. 172 m²
– Condition: shell finish
– Purchase price: EUR 447.088
– Barrier-free access
– High customer traffic due to location on Donaufelder Straße
– Excellent public transport connections (U1 Kagran, numerous bus and tram lines)
– Flexible use for various industries
Whether as a long-term investment or the site for your own business — this property offers a solid foundation for commercial success.
Arrange a viewing appointment now and discover the full potential of this space.
Located in one of Vienna’s most dynamic districts, this approximately 183 m² commercial space presents a rare opportunity: a prime property on Donaufelder Straße — close to the U1 Kagran station — offering excellent visibility and immense potential for customized use.
The unit is situated on the ground floor of a modern new building, fully accessible without barriers, and delivered in a shell condition. This allows buyers to tailor the interior design precisely to their needs — whether for a high-end retail store, medical practice, office, or service business.
Thanks to the L-shaped floor plan, a wide variety of spatial layouts can be realized. Large glass fronts facing the street provide visibility and a prestigious presence.
Key details at a glance:
– Living space: approx. 172 m²
– Condition: shell finish
– Purchase price: EUR 447.088
– Barrier-free access
– High customer traffic due to location on Donaufelder Straße
– Excellent public transport connections (U1 Kagran, numerous bus and tram lines)
– Flexible use for various industries
Whether as a long-term investment or the site for your own business — this property offers a solid foundation for commercial success.
Arrange a viewing appointment now and discover the full potential of this space.
Zusatzinformationen
Immobilienbewertung und Verkaufsangebot
Möchten Sie den aktuellen Marktwert Ihrer Immobilie ermitteln oder sind Sie auf der Suche nach einer passenden Immobilie? Wir bieten Ihnen eine unverbindliche und detaillierte Wertermittlung an und präsentieren Ihnen gerne diese Immobilie als potenzielles Kaufobjekt.
Rechtliche Hinweise
Bitte beachten Sie, dass wir in dieser Angelegenheit als Doppelmakler tätig sind.
Ebenfalls weisen wir Sie darauf hin, dass ein wirtschaftliches Naheverhältnis zwischen der Immobilien Firma KLASAN & Partner Immobilien GmbH & Co KG und der Firma 2Living Roha Immobilien GmbH besteht.
Nebenkosten beim Immobilienkauf
Beim Erwerb einer Immobilie fallen die folgenden Nebenkosten an:
Grundbucheintragung: 1,1 % des Kaufpreises
Grunderwerbssteuer: 3,5 % des Kaufpreises
Kaufvertragskosten: 1.5 % zzgl. 20 % MwSt. sowie Barauslagen
Vertragserrichter: Dr. Gernot Breitmeyer
Maklerprovision: 3 % zzgl. 20 % MwSt.
Sonderregelung bei Hauptwohnsitz:
Sollten Sie in der erworbenen Immobilie Ihren Hauptwohnsitz begründen, entfällt die Grundbucheintragung in Höhe von 1,1 %. Diese Regelung gilt jedoch nur, wenn Sie die Immobilie für mindestens 5 Jahre behalten. Sollte die Immobilie vor Ablauf dieser Frist veräußert werden, ist die Grundbucheintragung nachträglich zu entrichten.
Für Rückfragen oder zur Vereinbarung eines Besichtigungstermins stehen wir Ihnen jederzeit gerne zur Verfügung.
Weitere Informationen sowie ein Kurzvideo der Immobilie finden Sie auf unserer Website: www.klasanimmobilien.at
Auswahl ändern
Anbieter

Anbieter
Katharina Klasan
KLASAN & Partner Immobilien GmbH & Co KGTelefon
00436643...

Anbieter kontaktieren