4 Zimmer mit Terrasse (Fernblick)
2020 Hollabrunn











Objektinformation
Kosten
Kaufpreis€ 165.900
Betriebskosten (netto)€ 237,54
Provision
3% des Kaufpreises zzgl. 20% USt.
Vertragsart
, Kauf
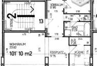
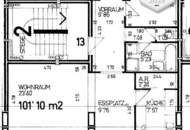
Wohnfläche
101,1 m2 (4 Zimmer)
Freifläche
, Terrasse
Bauart
Neubau: 1976
Energie
HWB276 kWh/m²
fGEE3,45
Verfügbar
ab sofort
Beschreibung
Auf Sie wartet eine 4 - Zimmer-Wohnung mit ca. 101 m² Wohnfläche samt Terrasse und Pkw-Stellplatz mitten im Zentrum von Hollabrunn.
Ideal für eine Familie!
Die nach Westen ausgerichtete Terrasse mit ca. 15 m² ermöglicht Ihnen einen traumhaften Fernblick. Die Wohnung liegt im 2. Stock (ohne Lift).
Die monatliche Vorschreibung beträgt € 361,87 brutto.
Ein Pkw-Stellplatz ist im Kaufgegenstand inkludiert. Dafür sind monatlich ca. € 28,-- (anteilige Betriebskosten und Reparaturfonds) zu bezahlen.
Sollte Ihr Interesse geweckt sein, wenden Sie sich bitte an Herrn Mag. G..
Ideal für eine Familie!
Die nach Westen ausgerichtete Terrasse mit ca. 15 m² ermöglicht Ihnen einen traumhaften Fernblick. Die Wohnung liegt im 2. Stock (ohne Lift).
Die monatliche Vorschreibung beträgt € 361,87 brutto.
Ein Pkw-Stellplatz ist im Kaufgegenstand inkludiert. Dafür sind monatlich ca. € 28,-- (anteilige Betriebskosten und Reparaturfonds) zu bezahlen.
Sollte Ihr Interesse geweckt sein, wenden Sie sich bitte an Herrn Mag. G..
Mehr
Weitere Preisinformationen
- Sonstige Kosten€ 100,58
Lage
Diese Immobilie befindet sich in zentraler Lage von Hollabrunn. Der Bahnhof ist fußläufig nur wenige Minuten entfernt.
Auswahl ändern
Anbieter

Anbieter
Gottfried Böck
Kuttenberger Makler GmbHTelefon
+43 676 4...

Anbieter kontaktieren