Großzügiges 5-Zimmer Büro Nähe Schottentor
1080 Wien, Josefstadt












164,73 m²5 Räume€ 3.263,07
Objektinformation
Kosten
Gesamtbelastung (netto)€ 3.263,07
Summe Miete (netto)€ 2.964,39
Betriebskosten (netto)€ 277,33
Provision
3 Bruttomonatsmieten zzgl. 20% USt.
Kautionshinweis
3 Bruttomonatsmieten
Vertragsart
, Miete
Nutzfläche
164,73 m2 (5 Zimmer)
Freifläche
, Balkon
Bauart
Altbau: 1907
Energie
HWB182,2 kWh/m²
HWB-KlasseE
Energieausweis bis2023-01-17
Beschreibung
Zur Vermietung gelangt eine großartige 5-Zimmer Bürofläche im wunderbaren 8. Wiener Gemeindebezirk Josefstadt.
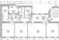
Das Objekt befindet sich im Mezzanin eines perfekt erhaltenen Altbaugebäudes welches im Jahr 1907 gebaut wurde und ist insgesamt ca. 164,73 m² groß. Neben den 5 Zimmern, welches als Büro vorgesehen sind, verfügt die Immobilie noch über eine Küche, diese man mit einer Ablöse erwerben kann, zwei WCs, ein Badezimmer mit WC und einen Abstellraum. Zudem gibt es einen Zugang zu einem kleinen gemütlichen Balkon, welcher in Richtung des Innenhofs ausgerichtet ist. Die Größe der einzeln..
Das Objekt befindet sich im Mezzanin eines perfekt erhaltenen Altbaugebäudes welches im Jahr 1907 gebaut wurde und ist insgesamt ca. 164,73 m² groß. Neben den 5 Zimmern, welches als Büro vorgesehen sind, verfügt die Immobilie noch über eine Küche, diese man mit einer Ablöse erwerben kann, zwei WCs, ein Badezimmer mit WC und einen Abstellraum. Zudem gibt es einen Zugang zu einem kleinen gemütlichen Balkon, welcher in Richtung des Innenhofs ausgerichtet ist. Die Größe der einzeln..
Mehr
Weitere Preisinformationen
- Sonstige Kosten€ 21,35
Auswahl ändern
Anbieter

Anbieter
Christian Kiedl
IM Lifestyle Properties GmbHTelefon
+43 664 33...

Anbieter kontaktieren