Garagenstellplatz in bester Lage des 7. Wiener Bezirks
1070 Wien, Neubau
top ad








10 m²€ 165,83
Objektinformation
Kosten
Gesamtbelastung (brutto)€ 165,83
Gesamtbelastung (netto)€ 138,19
Kautionshinweis
3 Bruttomonatsmieten
Vertragsart
,  Miete 
Größe
10 m2
 Beschreibung 
Ab sofort können Sie lange und ermüdende Parkplatzsuche vergessen!
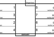
Zur Vermietung gelangt ein Garagenstellplatz im 7. Wiener Bezirk.
Der Stellplatz 6 rechts oben ist für SUV geeignet und ab sofort verfügbar.
Die Lage zwischen Westbahnhof und Mariahilfer Straße ist ideal und zentral gelegen.
Überzeugen Sie sich selbst von dieser attraktiven Immobilie.
Für Besichtigungen und nähere Informationen stehe ich Ihnen gerne zur Verfügung!
Herr Christian Kiedl
national - Tel: 0664 336 0836 [tel:06643360836]
international - Tel: +43 664 336 0836 [tel:+43664..
Zur Vermietung gelangt ein Garagenstellplatz im 7. Wiener Bezirk.
Der Stellplatz 6 rechts oben ist für SUV geeignet und ab sofort verfügbar.
Die Lage zwischen Westbahnhof und Mariahilfer Straße ist ideal und zentral gelegen.
Überzeugen Sie sich selbst von dieser attraktiven Immobilie.
Für Besichtigungen und nähere Informationen stehe ich Ihnen gerne zur Verfügung!
Herr Christian Kiedl
national - Tel: 0664 336 0836 [tel:06643360836]
international - Tel: +43 664 336 0836 [tel:+43664..
 Mehr 
Auswahl ändern
Anbieter

Anbieter
Christian Kiedl
IM Lifestyle Properties GmbHTelefon
+43 664 33...

Anbieter kontaktieren
 
  