Klimatisierte Bürofläche mit großer Terrasse bei U3 Schweglerstraße!
1150 Wien, Rudolfsheim-Fünfhaus, Stättermayergasse







358,7 m²11 Räume€ 5.420,59
Objektinformation
Kosten
Gesamtbelastung (netto)€ 5.420,59
Summe Miete (netto)€ 4.627,23
Miete / m²€ 12,90
Betriebskosten (netto)€ 793,36
Provision
3 Bruttomonatsmieten zzgl. 20% USt.
Kautionshinweis
3 Bruttomonatsmieten
Vertragsart
,  Miete 
Nutzfläche
358,7 m2 (11 Zimmer) 
Freifläche
, Terrasse
Bauart
 Neubau: 1900 
Energie
HWB54,49 kWh/m²
HWB-KlasseC
Verfügbar
 ab sofort 
 Beschreibung 
Quick Facts: Terrasse mit 32,50qm I ruhig I repräsentativ I Klimageräte I Lift I U3 Schweglerstraße I Teeküche
Ich freue mich auf Ihren Anruf!
Paul Kleindl 0699/1188 7600
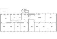
Auf 358,70qm präsentiert sich Ihnen hier ein originelles Büro im 2. Liftstock. Das Gebäude liegt wenige Meter zur U3 Station Schweglerstraße und Straßenbahnlinien 9 und 49. Das Büro besteht aus einem Empfangsbereich, 11 Büroeinheiten, einem Abstellraum, einer Teeküche und zwei Toiletten sowie einer Terrasse mit 32,50qm.
Betreten werden kann das Büro durch zwei Eingänge durch zwei separate Stiegen..
Ich freue mich auf Ihren Anruf!
Paul Kleindl 0699/1188 7600
Auf 358,70qm präsentiert sich Ihnen hier ein originelles Büro im 2. Liftstock. Das Gebäude liegt wenige Meter zur U3 Station Schweglerstraße und Straßenbahnlinien 9 und 49. Das Büro besteht aus einem Empfangsbereich, 11 Büroeinheiten, einem Abstellraum, einer Teeküche und zwei Toiletten sowie einer Terrasse mit 32,50qm.
Betreten werden kann das Büro durch zwei Eingänge durch zwei separate Stiegen..
 Mehr 
Auswahl ändern
Anbieter

Anbieter
Paul Kleindl
Lind ImmobilienTelefon
+43 699 118...

Anbieter kontaktieren
 
  