Traumhafte 2-Zimmer-Wohnung in 1150 Wien – mit Loggien und U-Bahn-Nähe!
1150 Wien, Rudolfsheim-Fünfhaus, Viktoriagasse










Objektinformation
Kosten
Kaufpreis€ 267.500
Kaufpreis / m²€ 4.314,52
Betriebskosten (netto)€ 154,08
Provision
3% des Kaufpreises zzgl. 20% USt.
Vertragsart
, Kauf
Wohnfläche
52 m2 (2.5 Zimmer)
Freifläche
, Loggia (2)
Bauart
Neubau: 1969
Energie
HWB89 kWh/m²
HWB-KlasseC
fGEE1,79
fGEE-KlasseD
Energieausweis bis2029-07-23
Beschreibung
Quick facts: Westbahnhof I Ikea I ruhige Seitenstraße I 2 Loggien I 2 Zimmer I separate Küche
Ich freue mich auf Ihren Anruf
Irene Lindenberger, 01/526 26 36
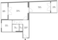
In einer ruhigen Seitenstraße der Mariahilfer Straße, in der Nähe vom Westbahnhof, wartet diese sehr gut geschnittene 2 Zimmerwohnung mit zwei Loggien auf Sie. Die Nutzfläche der Wohnung beträgt circa 52qm zuzüglich circa 10qm für die zwei Loggien. Das Apartment befindet sich im 1. Liftstock eines gepflegten Neubaus.
Raumaufteilung:
Vorraum
Separate Toilette
Badezimmer mit Dusche
Separate Kü..
Ich freue mich auf Ihren Anruf
Irene Lindenberger, 01/526 26 36
In einer ruhigen Seitenstraße der Mariahilfer Straße, in der Nähe vom Westbahnhof, wartet diese sehr gut geschnittene 2 Zimmerwohnung mit zwei Loggien auf Sie. Die Nutzfläche der Wohnung beträgt circa 52qm zuzüglich circa 10qm für die zwei Loggien. Das Apartment befindet sich im 1. Liftstock eines gepflegten Neubaus.
Raumaufteilung:
Vorraum
Separate Toilette
Badezimmer mit Dusche
Separate Kü..
Mehr
Weitere Preisinformationen
- Sonstige Kosten€ 63,75
Lage
Die Wohnung in der einer ruhigen Seitenstraße besticht durch ihre ideale Lage im pulsierenden 15. Bezirk. Mit einer östlichen und westlichen Ausrichtung genießen Sie sowohl morgendliche Sonne als auch abendliches Licht. Der nahegelegene Westbahnhof sorgt für exzellente Anbindung an den öffentlichen Verkehr, während die Mariahilfer Straße mit ihren zahlreichen Geschäften und Cafés nur einen kurzen Spaziergang entfernt ist. Hier erleben Sie urbanes Lebensgefühl in bester Form!
Auswahl ändern
Anbieter

Anbieter
Irene Lindenberger
Lind ImmobilienTelefon
+43 660 82...

Anbieter kontaktieren