Loftbüro im Industriestyle zu mieten!
1150 Wien, Rudolfsheim-Fünfhaus



















151,27 m²€ 13,53 / m²
Objektinformation
Kosten
Miete / m²€ 13,53
Nebenkosten€ 5,50
Vertragsart
, Miete , unbefristet
Nutzfläche
151,27 m2
Beschreibung
In diesem repräsentativen Gründerzeitgebäude stehen zwei Büroflächen mit einer Größe von 150m im 3.Obergschoss und 300m im 5.Obergeschoss zur Vermietung. Die Flächen zeichnen sich durch ihren loftartigen Grundriss und den modernen Industriestil aus. Ein besonderer Mehrwert für alle Mieter ist der großzügige und gemeinschaftlich nutzbare Dachgarten.
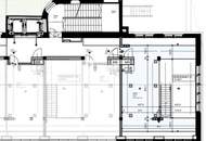
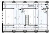
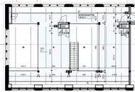
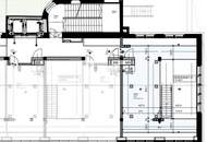
Raumaufteilung
3.OG: Open Space Bereich auf zwei Stockwerken
5.OG: 3 separate Räume und Open Space Bereich erstrecken sich über zwei Stockwerke.
Raumaufteilung
3.OG: Open Space Bereich auf zwei Stockwerken
5.OG: 3 separate Räume und Open Space Bereich erstrecken sich über zwei Stockwerke.
Lage
Das Objekt liegt zentral in Wien-Rudolfsheim-Fünfhaus und ist hervorragend an das öffentliche Verkehrsnetz angebunden. Geschäfte, Gastronomie und Infrastruktur des täglichen Bedarfs befinden sich in fußläufiger Umgebung.
Öffentliche Verkehrsmittel:
U-Bahn: U3
Straßenbahn: Linien 10, 49, 52
Bus: Linien 10A, 12A, 57A
Bahnhof: Westbahnhof wenige Minuten entfernt
Öffentliche Verkehrsmittel:
U-Bahn: U3
Straßenbahn: Linien 10, 49, 52
Bus: Linien 10A, 12A, 57A
Bahnhof: Westbahnhof wenige Minuten entfernt
Ausstattung
Allgemein:
Dachgarten
Personenaufzug
Müllraum
Fahrradraum
3.OG:
Bodendosen
Sanitärflächen am Gang
PVC Boden
Fenster öffenbar
Elektronische Außenjalousie auf Straßenseite
Fancoils
Serverkasten
CAT 7
Teeküche
5.OG:
Bodendosen
Getrennte Sanitärflächen
PVC Boden
Fenster öffenbar
Elektronische Außenjalousie auf Straßenseite
Fancoils
Serverkasten
CAT 7
Teeküche
Dachgarten
Personenaufzug
Müllraum
Fahrradraum
3.OG:
Bodendosen
Sanitärflächen am Gang
PVC Boden
Fenster öffenbar
Elektronische Außenjalousie auf Straßenseite
Fancoils
Serverkasten
CAT 7
Teeküche
5.OG:
Bodendosen
Getrennte Sanitärflächen
PVC Boden
Fenster öffenbar
Elektronische Außenjalousie auf Straßenseite
Fancoils
Serverkasten
CAT 7
Teeküche
Auswahl ändern
Anbieter

Anbieter
Antonia Vrcic
MG Real Estate GmbHTelefon
+43 1 513 ...

Anbieter kontaktieren