Investment. Strategie. Rendite.
5110 Oberndorf bei Salzburg, Kirchenplatz
















€ 1.512.000
Objektinformation
Kosten
Kaufpreis€ 1.512.000
Kaufpreis / m²€ 4.800,00
Provision
3,6%
Vertragsart
, Kauf
Nutzfläche
keine Angabe
Energie
HWB45 kWh/m²
HWB-KlasseB
fGEE1,01
fGEE-KlasseC
Energieausweis bis2025-12-13
Beschreibung
Dieses Wohnhaus mit insgesamt 13 Wohneinheiten ist ein echtes Fundstück für Investoren und Anleger, die Chancen lieber nutzen als verpassen. Bereits sind die Hälfte der Wohnungen verkauft
– aktuell stehen noch 5 Einheiten zur Verfügung.
- Flexible Kaufkonzepte – Sie entscheiden, ob Sie sofort einziehen oder die Edelrohbauwohnungen selbst ausbauen
- Preise, die mit Ihren Wünschen mitwachsen – hier zahlt sich Flexibilität aus
- Persönliche Beratung? Selbstverständlich – wir finden mit Ihnen zusammen die perfekte Lösung
- In der Region herrscht hohe Mietnachfra..
– aktuell stehen noch 5 Einheiten zur Verfügung.
- Flexible Kaufkonzepte – Sie entscheiden, ob Sie sofort einziehen oder die Edelrohbauwohnungen selbst ausbauen
- Preise, die mit Ihren Wünschen mitwachsen – hier zahlt sich Flexibilität aus
- Persönliche Beratung? Selbstverständlich – wir finden mit Ihnen zusammen die perfekte Lösung
- In der Region herrscht hohe Mietnachfra..
Mehr
Lage
Das Objekt direkt am Kirchplatz bietet eine zentrale und gut erreichbare Lage.
In unmittelbarer Nähe befinden sich einige Geschäfte und Dienstleister.
Die Nähe zu Salzburg- sowohl mit dem Auto, als auch mit naheliegenden
öffentlichen Verkehrsmitteln erreichbar (Lokalbahn, Bus) -macht
diesen Standort besonders attraktiv.
In unmittelbarer Nähe befinden sich einige Geschäfte und Dienstleister.
Die Nähe zu Salzburg- sowohl mit dem Auto, als auch mit naheliegenden
öffentlichen Verkehrsmitteln erreichbar (Lokalbahn, Bus) -macht
diesen Standort besonders attraktiv.
Ausstattung
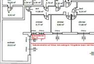
EG Top 3
Preis: 280.000 € - 70 m2 Wo/Ko/Ess, 1 SZ, Bad mit WC, Vorraum
Terrasse
2. OG Top 9
Preis: 380.000 € - 95 m2 - Wo/Ko/Ess, 3 SZ, Bad, WC, Abstellraum, Vorraum
großer Balkon
2. OG Top 10 a
Preis: 280.000 € - ca. 75 m2 - Wo/Ko/Ess, 1 SZ, Bad, WC, Abstellraum, Vorraum
2. OG Top 10 b
Preis: 280.000 € - ca. 75 m2 - Wo/Ko/Ess, 1 SZ, Bad, WC, Vorraum, Abstellraum
Preis: 280.000 € - 70 m2 Wo/Ko/Ess, 1 SZ, Bad mit WC, Vorraum
Terrasse
2. OG Top 9
Preis: 380.000 € - 95 m2 - Wo/Ko/Ess, 3 SZ, Bad, WC, Abstellraum, Vorraum
großer Balkon
2. OG Top 10 a
Preis: 280.000 € - ca. 75 m2 - Wo/Ko/Ess, 1 SZ, Bad, WC, Abstellraum, Vorraum
2. OG Top 10 b
Preis: 280.000 € - ca. 75 m2 - Wo/Ko/Ess, 1 SZ, Bad, WC, Vorraum, Abstellraum
Zusatzinformationen
Zusätzliche Besonderheiten entdecken Sie am besten bei einem Rundgang.
Ich freue mich auf Ihre Anfrage!
Auswahl ändern
Anbieter

Anbieter
Nina Krämer
M & R Immobilien OGTelefon
00436644...

Anbieter kontaktieren