Büro / Ordination in Zentrumsnähe von Schwarzach - 98 m²
5620 Schwarzach im Pongau



€ 1.010,00
Objektinformation
Kosten
Warmmiete€ 1.010,00
Vertragsart
, Miete , unbefristet
Nutzfläche
keine Angabe
Beschreibung
Lage: Die sehr hellen Räumlichkeiten befinden sich im 1. Obergeschoss eines Wohn- und Geschäftshauses in Zentrumsnähe von Schwarzach.
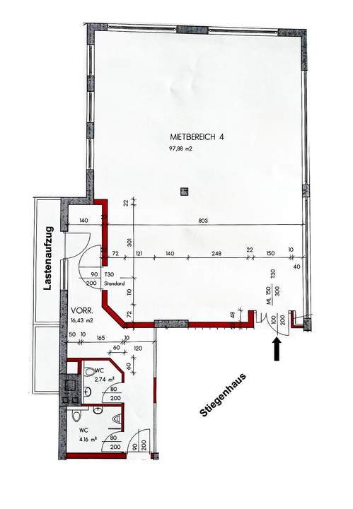
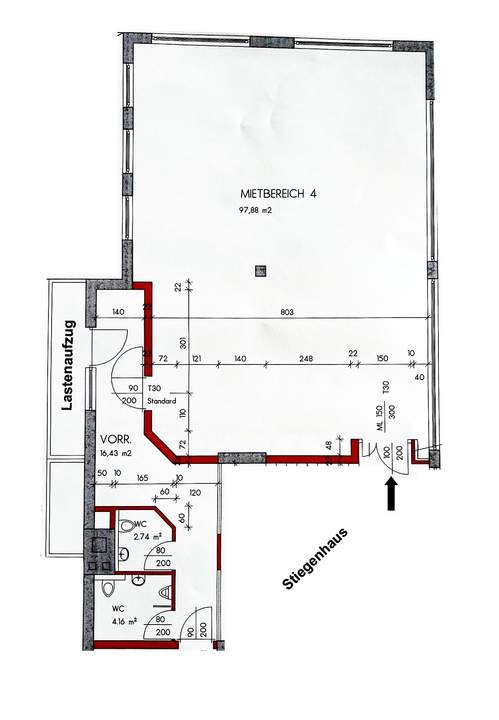
Größe: ca. 98 m² + Vorraum samt WC-Anlage
Einteilung:
Großer Büroraum / kann bei Bedarf in mehrere Räume unterteilt werden;
Vorraum mit WC-Anlage und Zugang zum Lastenaufzug (dieser Bereich wird gemeinsam mit einer weiteren Büroeinheit genutzt).
Geheizt wird per Fernwärme. Die bereits erfolgte Sanierung des Hauses grarantiert niedrige Betriebs- und Heizkosten (Vollwärmeschutz, Fenster 3-fach-verglast etc.).
Für Kunden steht vor dem ..
Größe: ca. 98 m² + Vorraum samt WC-Anlage
Einteilung:
Großer Büroraum / kann bei Bedarf in mehrere Räume unterteilt werden;
Vorraum mit WC-Anlage und Zugang zum Lastenaufzug (dieser Bereich wird gemeinsam mit einer weiteren Büroeinheit genutzt).
Geheizt wird per Fernwärme. Die bereits erfolgte Sanierung des Hauses grarantiert niedrige Betriebs- und Heizkosten (Vollwärmeschutz, Fenster 3-fach-verglast etc.).
Für Kunden steht vor dem ..
Mehr
Weitere Preisinformationen
- Heizkosten enthaltenja
Auswahl ändern
Anbieter

Anbieter
Manfred Gallob
Pinzgauer Haus Wohnbaugesellschaft m.b.H. & Co. KGTelefon
0664 / 9...

Anbieter kontaktieren