++ NEU ++ ZINSHAUS - Fußgängerzone - Wiener Neustadt
2700 Wiener Neustadt
top ad
























880 m²€ 674.000
Objektinformation
Kosten
Kaufpreis€ 674.000
Kaufpreis / m²€ 765,91
Provision
3%
Vertragsart
, Kauf
Nutzfläche
880 m2
Grundstück
650 m2
Bauart
Altbau: 1931
Energie
HWB72 kWh/m²
HWB-KlasseC
Beschreibung
++ NEU ++ ZINSHAUS - Fußgängerzone - Wiener Neustadt
++ Zinshaus im Herzen von Wiener Neustadt ++
++ Geschäftslokal, Wohnungen & großes Potenzial ++
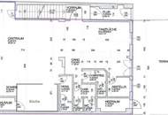
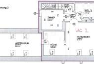
Zum Verkauf gelangt ein charaktervolles Zinshaus in bester Innenstadtlage von Wiener Neustadt, direkt auf der Fußgängerzone.
Das Gebäude steht auf einem rund 650 m² großen Grundstück und wurde in massiver Bauweise errichtet.
Das Haus verfügt über eine beeindruckende Geschäftsfläche im Erdgeschoss mit rund 541,08 m², die sich ideal für Handel, Gastronomie oder Dienstleistung eignet.
I..
++ Zinshaus im Herzen von Wiener Neustadt ++
++ Geschäftslokal, Wohnungen & großes Potenzial ++
Zum Verkauf gelangt ein charaktervolles Zinshaus in bester Innenstadtlage von Wiener Neustadt, direkt auf der Fußgängerzone.
Das Gebäude steht auf einem rund 650 m² großen Grundstück und wurde in massiver Bauweise errichtet.
Das Haus verfügt über eine beeindruckende Geschäftsfläche im Erdgeschoss mit rund 541,08 m², die sich ideal für Handel, Gastronomie oder Dienstleistung eignet.
I..
Mehr
Weitere Preisinformationen
- Provision (netto)€ 20.220,00
- Provision (brutto)€ 24.264,00
Auswahl ändern
Anbieter

Anbieter
PS Immo
Prima Service PS Immobilien e.U.Telefon
0664 346...

Anbieter kontaktieren