++ NEU ++ MODERNES REIHENHAUS mit Balkon, Terrasse & Wohnkeller
1220 Wien, Donaustadt, Orchideenweg
top ad



































Objektinformation
Kosten
Kaufpreis€ 599.000
Kaufpreis / m²€ 3.994,40
Provision
3%
Vertragsart
, Kauf
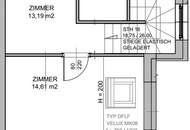
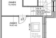
Wohnfläche
149,96 m2 (6 Zimmer)
Freifläche
, Balkon (2), Terrasse
Bauart
Neubau
Energie
HWB41,2 kWh/m²
HWB-KlasseB
Verfügbar
ab sofort
Beschreibung
++ NEU ++ MODERNES REIHENHAUS mit Balkon, Terrasse & Wohnkeller
++ Neubau-Reihenhäuser in Wien 22, Neuessling ++
In absolut ruhiger Lage in Wien 22, umgeben von Feldern und Grünflächen wurden sechs moderne Reihenhäuser auf Eigengrund errichtet.
Die Häuser verbinden modernen Wohnkomfort mit einer naturnahen Umgebung.
Jede Einheit verfügt über vier Etagen, einen beheizten Wohnkeller und mindestens einen Balkon oder eine Terrasse pro Ebene.
Ideal für Familien, die Ruhe, Grünblick und hochwertiges Wohnen suchen.
++ Haus 4 Nr. 47A / ..
++ Neubau-Reihenhäuser in Wien 22, Neuessling ++
In absolut ruhiger Lage in Wien 22, umgeben von Feldern und Grünflächen wurden sechs moderne Reihenhäuser auf Eigengrund errichtet.
Die Häuser verbinden modernen Wohnkomfort mit einer naturnahen Umgebung.
Jede Einheit verfügt über vier Etagen, einen beheizten Wohnkeller und mindestens einen Balkon oder eine Terrasse pro Ebene.
Ideal für Familien, die Ruhe, Grünblick und hochwertiges Wohnen suchen.
++ Haus 4 Nr. 47A / ..
Mehr
Weitere Preisinformationen
- Provision (netto)€ 17.970,00
- Provision (brutto)€ 21.564,00
Auswahl ändern
Anbieter

Anbieter
PS Immo
Prima Service PS Immobilien e.U.Telefon
0664 346...

Anbieter kontaktieren