++ STILALTBAU ++ mit laufendem Mietverhältnis – sicher investieren!
1030 Wien, Landstraße
top ad











Objektinformation
Kosten
Kaufpreis€ 490.000
Kaufpreis / m²€ 4.538,72
Provision
3%
Vertragsart
, Kauf
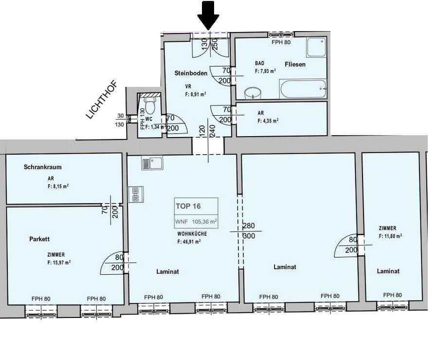
Wohnfläche
107,96 m2 (4 Zimmer)
Bauart
Altbau: 1890
Energie
HWB192,7 kWh/m²
HWB-KlasseE
Verfügbar
ab sofort
Beschreibung
++ STILALTBAU ++ mit laufendem Mietverhältnis – sicher investieren!
++ NEULINGGASSE in 1030 WIEN ++
++ IDEALES INVESTMENT für ANLEGER ++
Zum Verkauf gelangt eine unbefristet vermietete Altbauwohnung in einem gepflegten 1890 erbauten Zinshaus im beliebten 3.Wiener Gemeindebezirk.
Das Objekt befindet sich im 3. Liftstock und ist straßenseitig ausgerichtet.
Die jährlichen Netto-Mieteinnahmen liegen bei 8.066,88 Euro (ohne BK und Ust.)
Die Betriebskosten werden dem Mieter auch verrechnet.
Nettomiete/Monat: € 672,24
BK Nett..
++ NEULINGGASSE in 1030 WIEN ++
++ IDEALES INVESTMENT für ANLEGER ++
Zum Verkauf gelangt eine unbefristet vermietete Altbauwohnung in einem gepflegten 1890 erbauten Zinshaus im beliebten 3.Wiener Gemeindebezirk.
Das Objekt befindet sich im 3. Liftstock und ist straßenseitig ausgerichtet.
Die jährlichen Netto-Mieteinnahmen liegen bei 8.066,88 Euro (ohne BK und Ust.)
Die Betriebskosten werden dem Mieter auch verrechnet.
Nettomiete/Monat: € 672,24
BK Nett..
Mehr
Weitere Preisinformationen
- Provision (netto)€ 14.700,00
- Provision (brutto)€ 17.640,00
Auswahl ändern
Anbieter

Anbieter
PS Immo
Prima Service PS Immobilien e.U.Telefon
0664 346...

Anbieter kontaktieren