++ FAMILIENIDYLLE ++ MAISONETTE im PROJEKT KARL74
1220 Wien, Donaustadt, Erzherzog Karl Strasse




























Objektinformation
Kosten
Kaufpreis€ 699.000
Kaufpreis / m²€ 5.866,06
Provision
3%
Vertragsart
, Kauf
Wohnfläche
119,16 m2 (5 Zimmer)
Freifläche
, Balkon, Terrasse (2)
Bauart
Neubau: 2025
Energie
HWB29 kWh/m²
HWB-KlasseB
Verfügbar
ab sofort
Beschreibung
++ FAMILIENIDYLLE ++ MAISONETTE im PROJEKT KARL74
++ Erzherzog-Karl-Straße | Bezugsfertig ab SOFORT ++
++ BESICHTIGUNGEN bereits MÖGLICH ++
Inmitten der begehrten Donaustadt wurde ein stilvolles Neubauprojekt realisiert.
Insgesamt wurden 33 freifinanzierte Eigentumswohnungen sowie eine Gewerbefläche errichtet – ergänzt durch eine hauseigene Tiefgarage mit 18 Stellplätzen, teils vorbereitet für E-Mobilität.
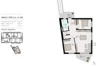
Top 1 Haus 2 – Ruhige FÜNF Zimmer Maisonette im Erdgeschoss und 1. Obergeschoss:
Wohnfläche: ca. 119,16 m² | 5 Zimmer
Fr..
++ Erzherzog-Karl-Straße | Bezugsfertig ab SOFORT ++
++ BESICHTIGUNGEN bereits MÖGLICH ++
Inmitten der begehrten Donaustadt wurde ein stilvolles Neubauprojekt realisiert.
Insgesamt wurden 33 freifinanzierte Eigentumswohnungen sowie eine Gewerbefläche errichtet – ergänzt durch eine hauseigene Tiefgarage mit 18 Stellplätzen, teils vorbereitet für E-Mobilität.
Top 1 Haus 2 – Ruhige FÜNF Zimmer Maisonette im Erdgeschoss und 1. Obergeschoss:
Wohnfläche: ca. 119,16 m² | 5 Zimmer
Fr..
Mehr
Weitere Preisinformationen
- Provision (netto)€ 20.970,00
- Provision (brutto)€ 25.164,00
Auswahl ändern
Anbieter

Anbieter
PS Immo
Prima Service PS Immobilien e.U.Telefon
0664 346...

Anbieter kontaktieren