Zeitlose Eleganz im Wienerwald – Historische Villa mit Nebengebäuden auf Traumgrundstück mit Outdoorpool und Waldsauna
3032 Eichgraben
































Objektinformation
Kosten
Kaufpreis€ 4.200.000
Kaufpreis / m²€ 11.619,22
Provision
3% des Kaufpreises zzgl. 20% USt.
Vertragsart
, Kauf
Wohnfläche
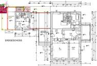
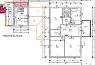
361,47 m2 (8 Zimmer)
Grundstück
33.180 m2
Freifläche
, Balkon (2), Terrasse (2)
Objektart
Massivhaus
Bauart
Altbau: 1925
Energie
HWB110 kWh/m²
HWB-KlasseD
Beschreibung
Diese prachtvolle Villa aus dem Jahr 1925 vereint historischen Charme mit modernstem Wohnkomfort. Mit höchster Sorgfalt renoviert, bietet sie die perfekte Symbiose aus klassischer Architektur und zeitgemäßer Technik – ein Rückzugsort für alle, die das Besondere suchen.
VIDEO DER VILLA [https://storage.justimmo.at/video/1080p/3MYDq8MxyqCxNlFBNuNvJv.mp4]
✨ HIGHLIGHTS DES ANWESENS
*
Wohnfläche: ca. 361 m², perfekt durchdachter Grundriss
*
Grundstück: ca. 33.180 m², absolute Privatsphäre
*
Gebäudeensemble: Hauptvilla, 2 Gästehäuser (eines..
VIDEO DER VILLA [https://storage.justimmo.at/video/1080p/3MYDq8MxyqCxNlFBNuNvJv.mp4]
✨ HIGHLIGHTS DES ANWESENS
*
Wohnfläche: ca. 361 m², perfekt durchdachter Grundriss
*
Grundstück: ca. 33.180 m², absolute Privatsphäre
*
Gebäudeensemble: Hauptvilla, 2 Gästehäuser (eines..
Mehr
Lage
Die Villa liegt eingebettet im idyllischen Wienerwald und ist dennoch bestens an Wien angebunden.
Entfernung nach Wien: ca. 20–30 Fahrminuten mit dem Auto
Öffentliche Verkehrsmittel: Bahnhöfe und Buslinien in der Nähe, Fahrzeit ins Wiener Stadtzentrum ca. 30–40 Minuten
Infrastruktur: Nahversorgung, Gastronomie sowie Ärzte in wenigen Minuten erreichbar
Familienfreundlich: Kindergärten und Volksschulen in der Umgebung, weiterführende Schulen in den angrenzenden Gemeinden oder in Wien schnell erreichbar
Entfernung nach Wien: ca. 20–30 Fahrminuten mit dem Auto
Öffentliche Verkehrsmittel: Bahnhöfe und Buslinien in der Nähe, Fahrzeit ins Wiener Stadtzentrum ca. 30–40 Minuten
Infrastruktur: Nahversorgung, Gastronomie sowie Ärzte in wenigen Minuten erreichbar
Familienfreundlich: Kindergärten und Volksschulen in der Umgebung, weiterführende Schulen in den angrenzenden Gemeinden oder in Wien schnell erreichbar
Zusatzinformationen
RECHTLICHE HINWEISE:
Wir ersuchen um Verständnis, dass wir von Ihnen vor der Zusendung des Exposés die Bestätigung des sofortigen Tätigwerdens sowie die Bestätigung über die Aufklärung des Rücktrittrechtes gemäß FAGG (Fern- und Auswärtsgeschäfte-Gesetz) benötigen. Anschließend freuen wir uns über eine Terminvereinbarung.
Am 20. März 2024 wurde im Nationalrat die temporäre Befreiung von den Gebühren für die Eintragung von Eigentumsrecht und Pfandrecht (Bis 500.000 Euro) im Grundbuch bei Erwerb von Wohnraum beschlossen. (Zu beachten sind die Bedingungen lt. Bundesministerium für Justiz).
Die Verpflichtung zur Zahlung einer Vermittlungsprovision entsteht für Sie selbstverständlich nur bei erfolgreicher Vermittlung und wird erst mit der Rechtswirksamkeit des vermittelten Geschäftes fällig.
Wir können, aufgrund des bestehenden Geschäftsgebrauchs, als Doppelmakler tätig sein.
Die Angaben beruhen teilweise auf Informationen des Eigentümers und sind ohne Gewähr!
Es wird auf ein bestehendes Naheverhältnis zum Verkäufer hingewiesen.
Auswahl ändern
Anbieter

Anbieter
Bruno Franz
RealGoodLiving Real Estate Services GmbHTelefon
+43 664 35...
Anbieter kontaktieren