"Einfamilienhaus mit Grundstück in Mauerbach"
3001 Mauerbach



































Objektinformation
Kosten
Kaufpreis€ 349.000
Provision
3.00 %
Vertragsart
, Kauf
Wohnfläche
95 m2 (2 Zimmer)
Grundstück
595 m2
Freifläche
, Terrasse
Objektart
Massivhaus
Energie
HWB144 kWh/m²
HWB-KlasseD
fGEE2,31
fGEE-KlasseD
Beschreibung
"Einfamilienhaus mit schönem Grundstück in Mauerbach"
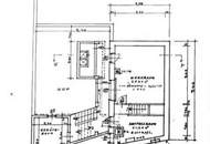
Dieses im Jahr 1975 erbaute Haus wurde in massiver Ziegelbauweise auf einem ca. 595m² großen Grundstück in ruhiger Siedlungslage errichtet und bietet auf 2 Ebenen insgesamt 95m² Wohnraum (Nutzfläche 122m²).
Das 595m² große Grundstück (keine Hanglage) ist gut ausgerichtet und bietet reichlich Platz um die Ideen der neuen Besitzer auch umsetzen zu können. Schwimmbecken, Obstgarten oder einem Kinderspielplatz steht nichts im Wege.
Das Haus selbst besteht aus zwei Ebenen welche durch eine Außen stiege miteinander ..
Dieses im Jahr 1975 erbaute Haus wurde in massiver Ziegelbauweise auf einem ca. 595m² großen Grundstück in ruhiger Siedlungslage errichtet und bietet auf 2 Ebenen insgesamt 95m² Wohnraum (Nutzfläche 122m²).
Das 595m² große Grundstück (keine Hanglage) ist gut ausgerichtet und bietet reichlich Platz um die Ideen der neuen Besitzer auch umsetzen zu können. Schwimmbecken, Obstgarten oder einem Kinderspielplatz steht nichts im Wege.
Das Haus selbst besteht aus zwei Ebenen welche durch eine Außen stiege miteinander ..
Mehr
Weitere Preisinformationen
- MwSt. Satz20,00 %
Auswahl ändern
Anbieter

Anbieter
Gerald Hinker
RE/MAX Donau City ImmobilienTelefon
+43 664 197...

Anbieter kontaktieren
Downloads zum Objekt