"Viel Platz zur Verwirklichung: Sanierungsbedürftige Familienwohnung in der Buchengasse"
1100 Wien, Favoriten

















Objektinformation
Kosten
Kaufpreis€ 350.000
Provision
3.00 %
Vertragsart
, Kauf
Wohnfläche
143,85 m2 (5 Zimmer)
Objektart
Dachgeschosswohnung
Energie
HWB96,5 kWh/m²
HWB-KlasseC
fGEE1,59
fGEE-KlasseC
Verfügbar
ab sofort
Beschreibung
"Viel Platz zur Verwirklichung: Sanierungsbedürftige Familienwohnung in der Buchengasse"
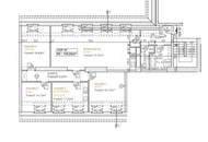
Zum Verkauf steht die sanierungsbedürftige Wohnung Top 37 im 6. Obergeschoss eines Wohnhauses in der Buchengasse im 10. Wiener Gemeindebezirk. Die Einheit bietet eine großzügige Nutzfläche und ein sehr flexibles Raumkonzept – ideal für Käufer, die ihre Wohnvorstellungen individuell umsetzen möchten.
Die Wohnung befindet sich in renovierungsbedürftigem Zustand und bietet entsprechendes Potenzial zur Neugestaltung.
Raumaufteilung:
Vorraum: ca. 6,25 m²
Wohnküche: ca. 47,55 m..
Zum Verkauf steht die sanierungsbedürftige Wohnung Top 37 im 6. Obergeschoss eines Wohnhauses in der Buchengasse im 10. Wiener Gemeindebezirk. Die Einheit bietet eine großzügige Nutzfläche und ein sehr flexibles Raumkonzept – ideal für Käufer, die ihre Wohnvorstellungen individuell umsetzen möchten.
Die Wohnung befindet sich in renovierungsbedürftigem Zustand und bietet entsprechendes Potenzial zur Neugestaltung.
Raumaufteilung:
Vorraum: ca. 6,25 m²
Wohnküche: ca. 47,55 m..
Mehr
Weitere Preisinformationen
- MwSt. Satz20,00 %
Auswahl ändern
Anbieter

Anbieter
Andrea Eisner
RE/MAX Donau City ImmobilienTelefon
+43 660 77 ...

Anbieter kontaktieren