Zwei Seiten, ein Stil – Die besondere Doppelhaushälfte
6780 Bartholomäberg, Außerböden


























Objektinformation
Kosten
Kaufpreis€ 544.421
Provision
3%
Vertragsart
, Kauf
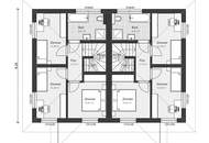
Wohnfläche
93 m2 (4 Zimmer)
Grundstück
268 m2
Beschreibung
+ Doppelhaushälfte Smart Life 93 mit 93 m² Nettogrundrissfläche, Schlüsselfertig
+ 20° Walmdach, fertig eingedeckt inkl. Dachvorsprung
+ Ziehtreppe in Dachboden
+ Fertige Sanitär- und umfangreiche Elektroinstallationen
+ Luft-Wasser-Wärmepumpe mit Fußbodenheizung inkl. Kühlfunktion
+ 3-fach verglaste Kunststoff-Alu-Fenster
+ Alu-Rollläden inkl. E-Antrieb mit Fernbedienung
+ 5 kWp Photovoltaikanlage
+ Fugenloser Fassadenputz auf der Baustelle aufgebracht
+ Anschlussgebühren (Strom, Wasser und Kanal)
+ Schigebiet Golm und viele Wanderwege, sowie Tennisplatz und Schw..
+ 20° Walmdach, fertig eingedeckt inkl. Dachvorsprung
+ Ziehtreppe in Dachboden
+ Fertige Sanitär- und umfangreiche Elektroinstallationen
+ Luft-Wasser-Wärmepumpe mit Fußbodenheizung inkl. Kühlfunktion
+ 3-fach verglaste Kunststoff-Alu-Fenster
+ Alu-Rollläden inkl. E-Antrieb mit Fernbedienung
+ 5 kWp Photovoltaikanlage
+ Fugenloser Fassadenputz auf der Baustelle aufgebracht
+ Anschlussgebühren (Strom, Wasser und Kanal)
+ Schigebiet Golm und viele Wanderwege, sowie Tennisplatz und Schw..
Mehr
Weitere Preisinformationen
- Sonstige Preisangaben€ 544.421,00
Zusatzinformationen
- 3,5% Grunderwerbsteuer
- 1,1% Grundbuchseintragung (entfällt bis € 500.000,00)*
- 3,0% Vermittlungsprovision zzgl. 20% MwSt.
- Vertragserrichtungskosten
- Beglaubigungskosten + Barauslagen
*Für Detailinformationen stehen wir Ihnen gerne zur Verfügung.
Auswahl ändern
Anbieter

Anbieter
Alfred Geisinger
RE/MAX Immowest LauterachTelefon
00436644...

Anbieter kontaktieren