3-Zimmer-Wohnung nahe Gersthofer Platz u. Türkenschanzpark
1180 Wien, Währing






















63 m²3 Zimmer€ 1.135,00
Objektinformation
Kosten
Gesamtbelastung (brutto)€ 1.135,00
Gesamtbelastung (netto)€ 1.116,44
Summe Miete (netto)€ 930,88
Betriebskosten (netto)€ 185,56
Kautionshinweis
€ 3.500,00
Vertragsart
, Miete , befristet
Wohnfläche
63 m2 (3 Zimmer)
Objektart
Etagenwohnung
Energie
HWB57 kWh/m²
HWB-KlasseC
Verfügbar
ab sofort
Beschreibung
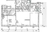
Zur Vermietung (befristet auf 4 Jahre) gelangt diese westseitige 3-Zimmer-Wohnung im 2. Liftstock nahe Gersthofer Platz, S-Bahn Gersthof und Türkenschanzpark.
Aus dem Vorraum gelangen Sie in das Wohnzimmer mit anschließender Kochnische, das Bad und das separate WC. Aus dem Wohnzimmer gelangen Sie in ein Zimmer mit ca. 13 m² und über den Küchenbereich in ein weiteres Zimmer.
Umgebung:
gute öffentliche Anbindung durch S-Bahn Gersthof, Straßenbahnlinien 40, 41 (Richtung Schottentor) sowie 10A, 42A
Gersthofer Straße und Währinger Einkaufsstraße - sämtliche..
Aus dem Vorraum gelangen Sie in das Wohnzimmer mit anschließender Kochnische, das Bad und das separate WC. Aus dem Wohnzimmer gelangen Sie in ein Zimmer mit ca. 13 m² und über den Küchenbereich in ein weiteres Zimmer.
Umgebung:
gute öffentliche Anbindung durch S-Bahn Gersthof, Straßenbahnlinien 40, 41 (Richtung Schottentor) sowie 10A, 42A
Gersthofer Straße und Währinger Einkaufsstraße - sämtliche..
Mehr
Auswahl ändern
Anbieter

Anbieter
Florian Mattersberger (Team Hubert Koller)
RE/MAX Real Experts
Anbieter kontaktieren